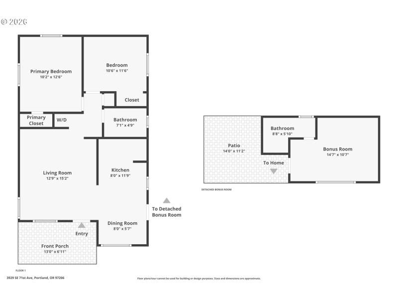
Wrap it up in frosting, this is the sweetest house in Foster-Powell! Refined mid-century ranch delivers a lovely combination of modern efficiency and urban homesteading and lives larger than it looks. The interior has been re-imagined for an open, airy flow, featuring refinished original oak hardwoods and fresh paint completed in late 2025. Significant updates provide peace of mind: a tankless water heater, HardiePlank siding and trim (2022), and a suite of recent appliances including a 2025 oven, dishwasher, and faucet. Updated bath with tub, wood floors, vinyl windows, washer, dryer, & ceilng fan. Tucked in the backyard is a detached bonus creative retreat equipped with a heat pump, queen Murphy bed, and full bathroom, this space is the ultimate creative escape or home office. The separate alley entrance and private gate provide easy access, making it a perfect 'bonus'. The yard is absolutely delightful with a covered patio designed for year-round enjoyment, featuring a chicken coop, raised garden beds, and an established mini-orchard of fig, apple, and Asian pear trees. Located blocks from restaurants, shops, multiple parks: Kerns & Essex, Higgins Boiled Bagels, HK Cafe, Ph? Hùng, not far from Mt. Scott Park. This home offers low-maintenance lifestyle in one of Portland's most communal neighborhoods. See virtual tour & updates list!
From Downtown East on Powell, Right on 72nd, Right Center St
Dwelling Type: Residential
Subdivision: FOSTER-POWELL
Year Built: 1951, County: US
From Downtown East on Powell, Right on 72nd, Right Center St
Listing is courtesy of eXp Realty, LLC
Sign in to your account to continue