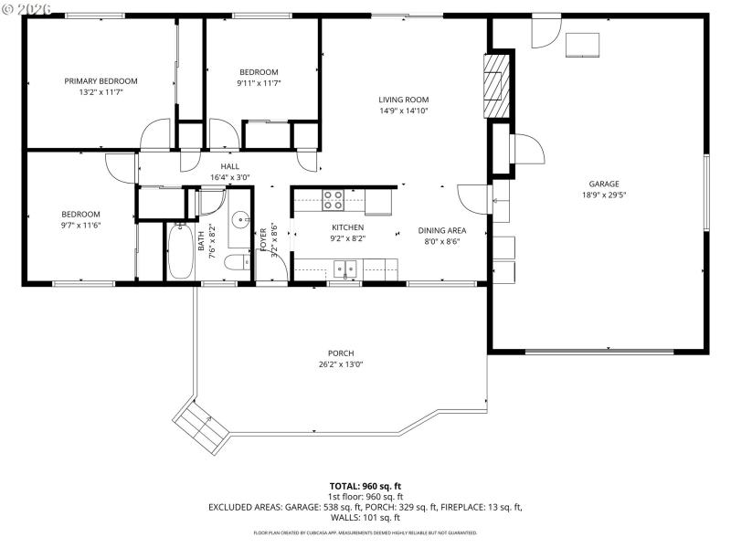
Beautifully updated and move-in ready single level home at the end of a private road, this charming 3-bedroom, 1-bath home offers the perfect blend of comfort, functionality, and space. With 1,022 square feet of thoughtfully designed living space, the home has been extensively remodeled and updated within the past 5–7 years, providing modern finishes and peace of mind.A standout feature is the expansive 20x30 attached garage, ideal for vehicles, storage, hobbies, or a workshop and in addition, a large backyard shed for additional flexibility. Situated on an oversized 13,500+ square foot lot, the property offers incredible outdoor potential, including ample parking for eight or more vehicles, perfect for RVs, boats, or guest parking!The generous yard provides room to garden, entertain, or expand, while the convenient location places you just minutes from shopping, dining, schools, and everyday amenities. This is a rare opportunity to own a fully updated home at the end of a private drive with exceptional space both inside and out.*Backyard images virtually landscaped with green grass and bark-dust*
Andresen RD - East on 58TH ST - South on 72ND AVE - West on 54TH ST to End on Right
Dwelling Type: Residential
Subdivision: N/A
Year Built: 1973, County: US
Andresen RD - East on 58TH ST - South on 72ND AVE - West on 54TH ST to End on Right
Listing is courtesy of Next Generation Real Estate LLC
Sign in to your account to continue