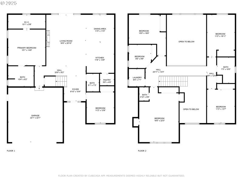
Convenience of location meets custom design in this Woodburn gem. Hardwood floors, soaring ceilings, and detailed millwork highlight the spacious interior. Chef’s kitchen with custom cabinets. 5 bedrooms + 2 offices/flex rooms, including the main-level primary suite. Enjoy a private covered patio and backyard oasis perfect for entertaining or unwinding. Generator-ready and owned solar panels, offering comfort, craftsmanship, and sustainability. Bare lot next door is also for sale!
N on 99e, right on Laurel.
Dwelling Type: Residential
Subdivision: N/A
Year Built: 2011, County: US
N on 99e, right on Laurel.
Listing is courtesy of Harcourts Elite