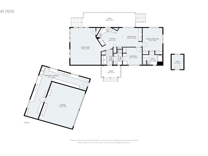
This residence offers expansive views of the Umpqua River, Pacific Ocean, and Winchester Bay’s Salmon Harbor from its elevated hilltop position. Situated down the street from the National Dunes Recreational Area, it is an ideal location for enthusiasts of outdoor activities. Residents can appreciate stunning sunsets and picturesque ocean and river vistas directly from the living area. A 120 sq. ft. deck at the front of the property is well-suited for barbecues, relaxation, and enjoying sunshine. An open concept floor plan enables seamless entertainment while maximizing enjoyment of scenic views and sunsets. The primary bedroom includes an ensuite bathroom, generous closet space, abundant natural light, and water views. The property is meticulously maintained, reflecting a high standard of ownership. With a total area of 1,248 sq. ft., this two-bedroom, two-bathroom home is positioned on a tranquil private road. The 896 sq. ft. garage is equipped with a workshop and a canning kitchen. Additional parking adjacent to the garage accommodates boats or recreational vehicles. The paved driveway ensures easy maintenance, and a garden shed provides ample storage for gardening tools and barbecue equipment. Extensive terracing facilitates flower gardens and straightforward outdoor upkeep. This property serves as an excellent base for a variety of recreational pursuits along the Oregon Coast. As the property is located on a private road, drive bys are not possible. Make an appointment to see this one of a kind property today!
101 S, Rt on Salmon Harbor Dr., L on Lighthouse Rd., l on Sunset Dr, Rt on GlenDee, home on Rt.
Dwelling Type: Residential
Subdivision: N/A
Year Built: 1981, County: US
101 S, Rt on Salmon Harbor Dr., L on Lighthouse Rd., l on Sunset Dr, Rt on GlenDee, home on Rt.
Listing is courtesy of Windermere Real Estate Lane County
Sign in to your account to continue