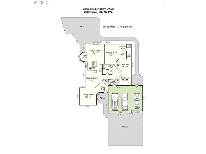
Professionally pre-inspected for Home/Sewer/Radon/HES/AirQuality for a smooth transaction. Desirable Jackson School single-story home with a generous 3-car garage. The upgraded kitchen showcases custom cabinetry and granite countertops, blending elegance with everyday convenience. A vaulted living room highlighted by oversized windows invites natural light and enhances the home’s spacious design. Step outside to find a tranquil backyard with patio space for outdoor entertaining and raised garden beds, ideal for cultivating your favorite plants or vegetables. Recent updates include the dishwasher, central AC system, water heater, garage door opener, blinds and fresh exterior/interior paint, ensuring the home feels like new. A true treasure in home ownership. [Home Energy Score = 7. HES Report at https://rpt.greenbuildingregistry.com/hes/OR10244154]
Jackson School RD south, east on Estate, south on Lindsey DR to the property
Dwelling Type: Residential
Subdivision: JACKSON SCHOOL
Year Built: 1993, County: US
Jackson School RD south, east on Estate, south on Lindsey DR to the property
Listing is courtesy of Knipe Realty ERA Powered
Sign in to your account to continue