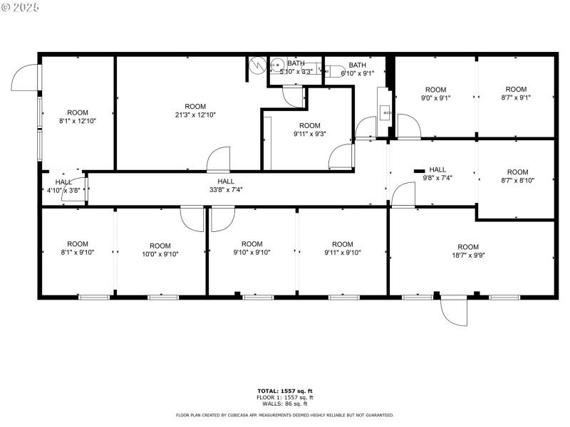
Prime opportunity in Portland’s Montavilla neighborhood. This 1,652 sqft commercial building is zoned Commercial Mixed Use 1 (CM1), offering flexibility for retail, office, medical or residential use. The spacious front entry (18’7” x 9’9”) is ideal for a reception area or showroom. The interior includes five separate rooms, with potential to reconfigure into up to nine individual offices. Two half bathrooms are also on-site. Previous building uses were retail and dental office. Conveniently located on high traffic Glisan Street. This property is near I-205, major bus lines, Montavilla Park, Fred Meyer, and a variety of local restaurants.
I 205 North, exit 21A left on Glisan, building on rt
Dwelling Type: CommercialSale
Subdivision: N/A
Year Built: 1926, County: US
I 205 North, exit 21A left on Glisan, building on rt
Listing is courtesy of Keller Williams Sunset Corridor