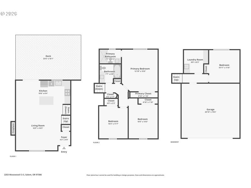
Beautifully updated 4-bedroom, 2-bath home tucked away on a quiet cul-de-sac. Features include a brand new roof and durable vinyl plank flooring throughout. The fully remodeled kitchen and bathrooms offer modern finishes and style, with a stunning tile walk-in shower in the primary suite. Enjoy the spacious, fully fenced yard—perfect for entertaining or relaxing—complete with a play structure. A move-in ready home combining comfort, functionality, and location! Mortgage savings may be available for buyers of this listing.
Waln Creek to Beechwood to Mosswood
Dwelling Type: Residential
Subdivision: N/A
Year Built: 1996, County: US
Waln Creek to Beechwood to Mosswood
Listing is courtesy of Redfin
Sign in to your account to continue