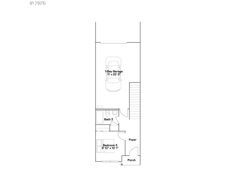
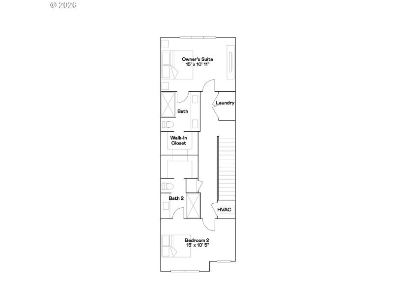
This new construction home is located in Scholls Heights, a brand new community with luxury townhomes now selling in Beaverton. Ideally set in with a park and quick access to greenspaces, shopping, restaurants, and excellent schools, you're sure to love living here! The Bailey plan features a versatile three-story design with a first-floor bedroom and full bathroom, an open-concept main living area on the second floor with access to a covered deck, and two additional bedrooms on the third floor, including a spacious primary suite with a private bath and walk-in closet. Interior highlights include quartz countertops, upgraded slab-style cabinets, and luxury vinyl plank flooring, along with premium details such as under-cabinet lighting, matte black accents, and a spa-inspired primary bath. This home also includes central air conditioning, a refrigerator, washer and dryer, and blinds—all at no extra cost! Exterior rendering is an artists conception of the home. Other photos are of similar home so some features and finishes will vary. Countertop colors & material and flooring are as shown, cabinets will be white. Below-market rate incentives available when financing with preferred lender. Located on Homesite 73, this home is estimated to be completed in Spring, 2026.
Scholls Ferry Rd to North on Strobel, Left on Sugarloaf, Left on Silvertip to end, Right on Trask
Dwelling Type: Residential
Subdivision: SCHOLLS HEIGHTS
Year Built: 2026, County: US
Scholls Ferry Rd to North on Strobel, Left on Sugarloaf, Left on Silvertip to end, Right on Trask
Listing is courtesy of Lennar Sales Corp
Sign in to your account to continue