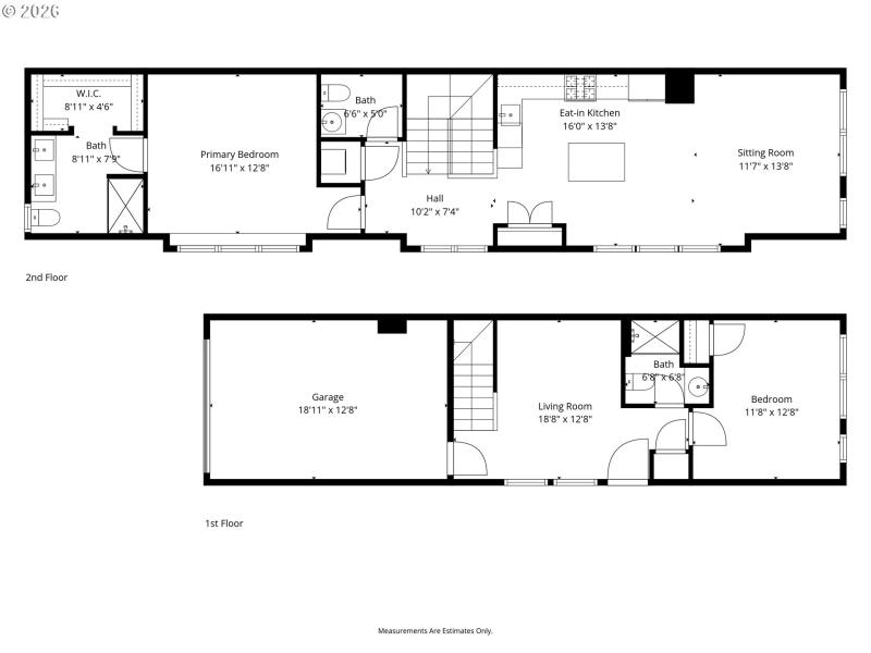
Welcome to 8104 SE Blanton St. A beautifully maintained 2-bedroom, 2.5-bath townhome built in 2022, offering modern comfort and privacy in one of South Hillsboro’s most vibrant neighborhoods. Thoughtfully designed with an open-concept layout, this home features light-filled living spaces, all new stainless steel appliances, and a seamless flow between kitchen and living areas, perfect for both everyday living and entertaining. Located in the highly desirable Reeds Crossing community of South Hillsboro, enjoy convenient access to public transit, shopping, and everyday essentials. Walk to New Seasons Market for some fresh groceries or grab your morning coffee at Insomnia Coffee Co. right next door. This thriving community is known for its inviting neighborhood atmosphere, featuring local parks with playgrounds, community gardens, scenic walking paths, and multiple fenced dog parks. Take advantage of neighborhood events like community markets, outdoor movie nights, and cozy fire pit gatherings, making it easy to connect and feel at home. Don’t miss your opportunity at Modern living, exceptional amenities, and a true sense of community.
Cornelius Pass, left on Blanton, Right on 83rd Ave, Right on Crabapple St, Right on Slaten Ln
Dwelling Type: Residential
Subdivision: REED'S CROSSING
Year Built: 2022, County: US
Cornelius Pass, left on Blanton, Right on 83rd Ave, Right on Crabapple St, Right on Slaten Ln
Listing is courtesy of Cascade Hasson Sotheby's International Realty
Sign in to your account to continue