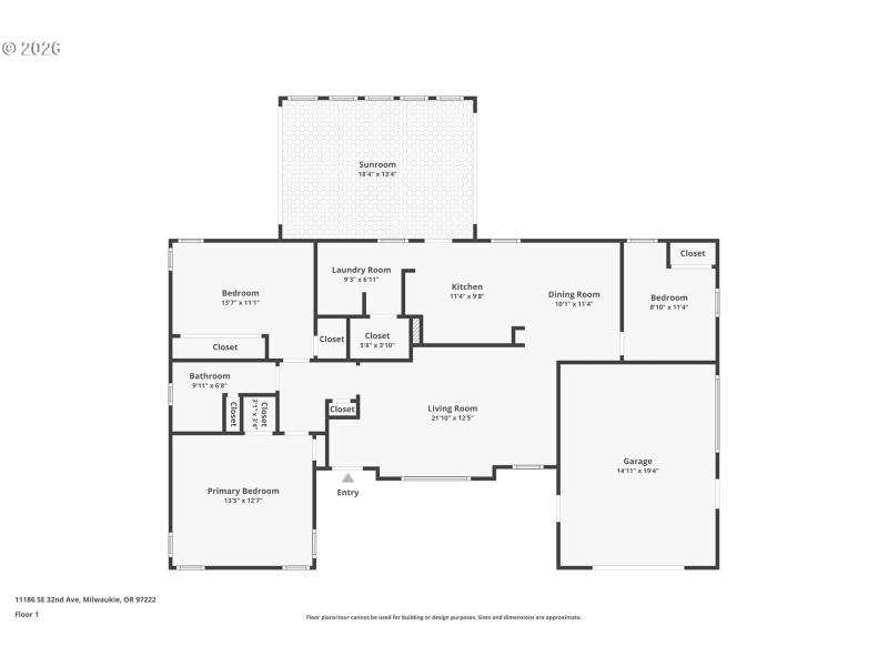
Cash, private money lender or rehab loans only. Fantastic CORNER DOUBLE LOT could be a mini compound for the right buyer or developer with extra zoning perks – BUYER TO VERIFY ALL. This home offers great bones and some recent updates including newer Presidential Shingle roof with metal valleys, newer wood T-111 siding & front porch overhang, some newer windows & tall sliding doors in addition. Spacious floorplan with 2 large bedrooms on one side of the house and smaller bedroom (could be a more quiet office) on the other side of the house. Quality period details: coved ceilings in most rooms, extensive use of hardwood floors, some original glass door knobs and a HUGE kitchen with gas cooking. Adjacent dining room and in-house laundry room with washer & dryer. Bring your hammer, paint brush and electrician! Electrical deficiencies with the panel & the furnace are beyond repair. Unfinished rear bonus "sun room" addition - permit status unknown - (approx. size 244 sqft +/-). This home is in a wonderful central location with lots of possibilities! Milwaukie is a biker's paradise - quick easy location to downtown Portland and more. Just 2 blocks to New Season's Market and minutes to downtown Milwaukie. Properties like this do not come along very often!
Hwy 99-So,, 224 South-east, Right on Oak St., R - on Washington St., L- 31st Ave, L-Madison, L-32nd
Dwelling Type: Residential
Subdivision: LAKE ROAD NEIGHBORHOOD
Year Built: 1949, County: US
Hwy 99-So,, 224 South-east, Right on Oak St., R - on Washington St., L- 31st Ave, L-Madison, L-32nd
Listing is courtesy of Sunset Living
Sign in to your account to continue