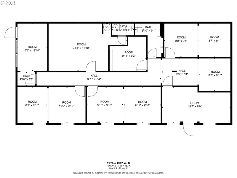
Prime opportunity in Portland’s Montavilla neighborhood. This 1,652 sqft commercial building is zoned Commercial Mixed Use 1 (CM1), offering flexibility for retail, office, medical or residential use. The spacious front entry (18’7” x 9’9”) is ideal for a reception area or showroom. The interior includes five separate rooms, with potential to reconfigure into up to nine individual offices. Two half bathrooms are also on-site. The adjoining vacant lot offers potential for significant improvements, including the addition of up to 12 off street parking spaces (buyer to verify). Previous building uses were retail and dental office. Conveniently located on high traffic Glisan Street. This property is near I-205, major bus lines, Montavilla Park, Fred Meyer, and a variety of local restaurants.
I 205 North, exit 21A left on Glisan, building on rt
Dwelling Type: CommercialSale
Subdivision: N/A
Year Built: 1926, County: US
I 205 North, exit 21A left on Glisan, building on rt
Listing is courtesy of Keller Williams Sunset Corridor