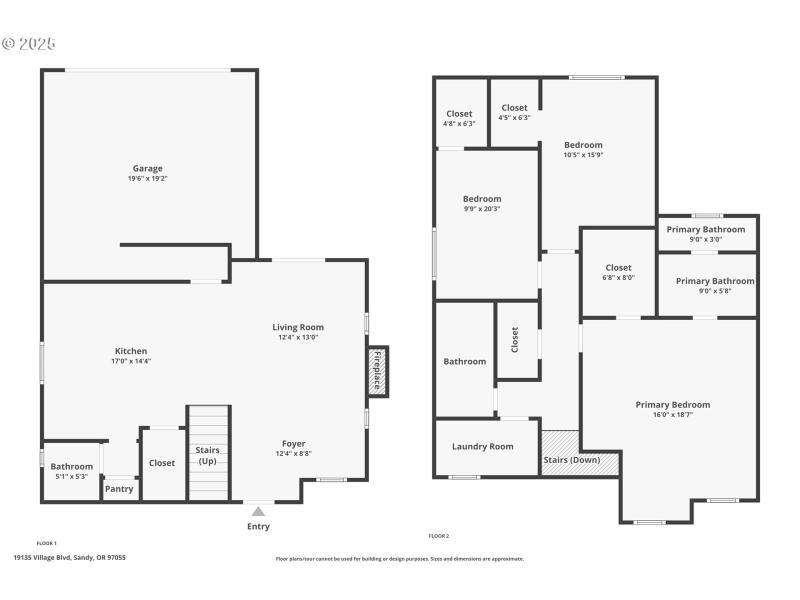
Welcome home to this immaculately maintained traditional two-story, perfectly situated in one of Sandy’s most sought-after neighborhoods. This turn-key gem offers an inviting blend of comfort, convenience, and style. Just steps from Bornstedt Park—with its playground, splash pad, and open green spaces—you’ll enjoy all the perks of a large yard without the hassle or upkeep. Step inside to a warm and open-concept living space featuring soaring ceilings, a cozy gas fireplace, and brand-new laminate flooring throughout the main level. The spacious kitchen and dining area are a home chef’s dream, showcasing beautiful granite countertops, abundant cabinet space, as well as a central island with eat bar. All stainless-steel appliances are included—refrigerator, gas range, dishwasher, and built-in microwave, along with a pantry for extra storage. A well-appointed half bath on the main floor adds convenience. Sliding doors from the dining area open to a covered porch and backyard patio, perfect for relaxing or entertaining. The backyard also includes a handy storage shed and a thoughtfully placed garden bed for growing your favorite fruits, vegetables, or flowers. Upstairs, the primary suite impresses with a spacious layout, a large walk-in closet, an ensuite bathroom, and stunning seasonal views of Mt. Hood. Down the hall are two additional bedrooms—both generously sized and featuring their own walk-in closets, as well as a full bath and laundry area. The garage has been upgraded into a high-end home gym but can easily be converted back to a two-car garage for all your vehicles and toys. Recent upgrades include fresh interior and exterior paint, new laminate flooring downstairs, and plush carpet with new padding upstairs. 30 minutes to the mountain and 30 minutes from the city, this move-in-ready home offers modern updates, a prime location, and unbeatable charm. Call to go see it today!
E on Hwy 26, S on Hwy 211, S on Village Blvd, Property on Right side, Second from the end.
Dwelling Type: Residential
Subdivision: N/A
Year Built: 2014, County: US
E on Hwy 26, S on Hwy 211, S on Village Blvd, Property on Right side, Second from the end.
Listing is courtesy of All County Real Estate