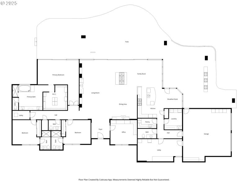
Paradise on the River Private dock with .63 acre tide right lot protected by neighboring marina. 4011 sq ft single level river lodge home on .90 acre lot. Oversized paved circular driveway with RV hookup.Outdoor covered patios overlooking the Columbia River with built in gas fire pit, cooking island with bbq, separate griddle, separate large gas burner with storage drawers. Attached natural gas outdoor heaters- 7 total.Professional landscaped grounds and gardens with a well for irrigation and sprinkler systemOversized 2 car garage with cabinets and built in vacuum.Open floor plan with 2 great rooms, glass walls open to the patios, including 1 in the master.Floor to ceiling camas rock natural gas 2 sided fireplace. Built in bar with refrigeration, sink and wine cooler.Open beam 25’ ceilings. Kitchen has side by side sub-zero refrigeration and freezers, Wolfe double oven range with griddle, Wolfe cabinet microwave in the island, Wolfe warming drawer. All beautifully finished in knotty alder cabinetry and a range to ceiling copper range hood.This is a one of a kind, must see property located in Steam Boat landing, riverfront.
SE Evergreen Hwy & SE 139th Ave
Dwelling Type: Residential
Subdivision: N/A
Year Built: 2015, County: US
SE Evergreen Hwy & SE 139th Ave
Listing is courtesy of Call It Closed International Realty
Sign in to your account to continue