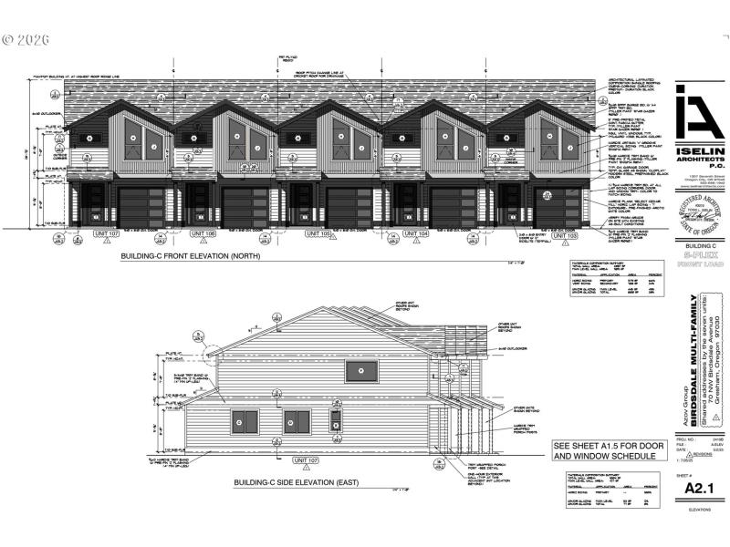
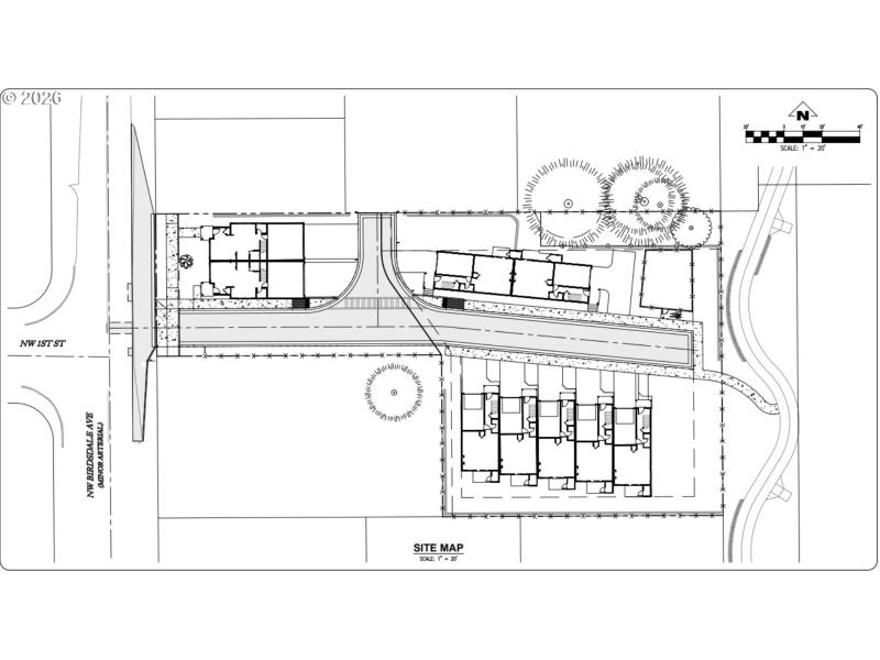
Permit-ready 9-unit townhome development site in Gresham — city only requires permit fees to begin construction. Fully entitled with approved architectural, civil engineering, and landscape plans. Two tax lots totaling 0.78 acres zoned CMU (Corridor Mixed Use), approved for two duplexes and one fiveplex. All nine units designed as 3-bedroom, 2.5-bath two-story townhomes averaging approximately 1,400 SF each (~12,600 SF total livable). Each unit includes a private garage with driveway parking. Site plan includes private driveways, children's play area, stormwater management, bike parking, and landscaped buffers. Flat, cleared lot with all utilities available at the street including public water, sewer, natural gas, and electricity. No existing structures. Located south of Powell Blvd near NW Civic Dr with easy access to MAX light rail, Gresham Station shopping, and Highway 26. Strong rental demand in the Gresham market makes this an ideal build-to-rent or build-to-sell opportunity. Complete entitlement package transfers with sale including civil drawings, architectural plans, and landscape permit set. Buyer selects general contractor and interior finishes. Seller is a licensed Oregon real estate broker with ownership interest in the property.
NW Birdsdale Ave and NW 1st St. South of W Powell Blvd, west of NW Civic Dr.
Dwelling Type: Land
Subdivision: WONDER VIEW AC
Year Built: N/A, County: US
NW Birdsdale Ave and NW 1st St. South of W Powell Blvd, west of NW Civic Dr.
Listing is courtesy of Kelly Right Real Estate of Portland, LLC
Sign in to your account to continue