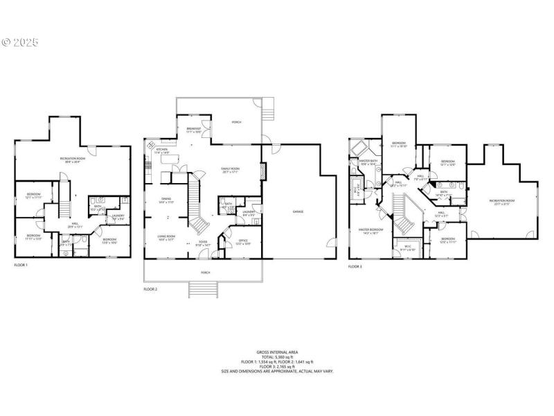
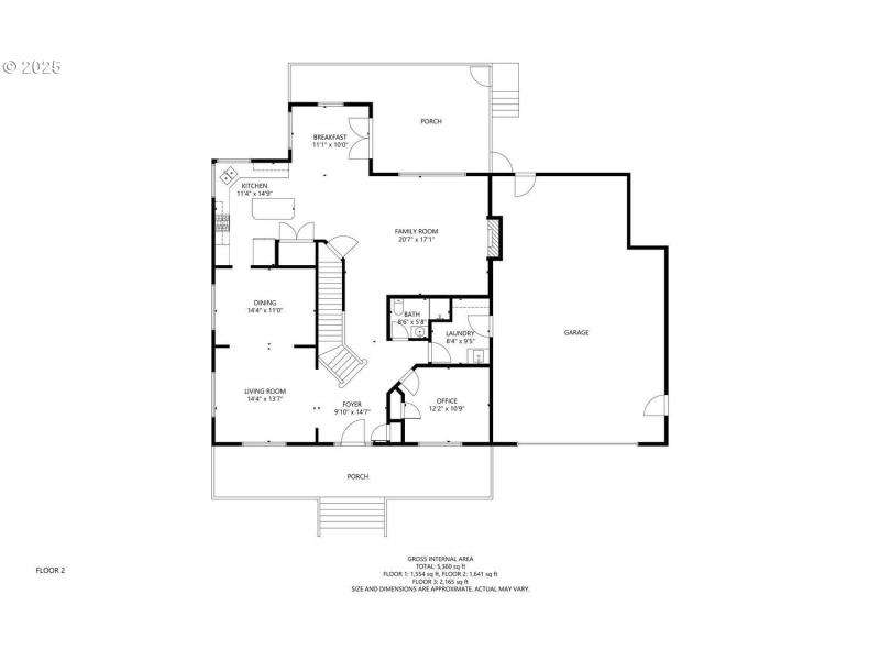
Gorgeous one of a kind custom built 6 Bed 5 Bath 5710-sqft home in most highly desired Forest Heights. Grand entrance w/gleaming Brazilian cherry hardwood floors throughout. Extensive wainscoting, gourmet kitchen w/island, slab granite countertops, SS appliances, convection oven & gas cooking, fireplace, office/bedroom with full bath on main. Master suite w/French doors, double closets & jet tub, and Spacious bedrooms + bonus upstairs. Finished daylight basement ADU w/private ground level walk-in entry, marble floors, 3 bedrooms, perfect for multi generations living, extended guests and in-laws. Beautiful yard w/covered front porch & covered rear deck. Highly rated school dist but w/Washington County Tax. This property is located in the prestigious Forest Heights neighborhood, one of the most sought-after communities in the Portland metro area. The property benefits from already-installed left and rear perimeter fences, professionally maintained by the Forest Heights Homeowners Association (FHHOA), providing both convenience and cost savings. Situated in Washington County, Lot #1 (this property) enjoys the advantage of significantly lower property taxes compared to neighboring lots within Multnomah County—making it a smarter long-term investment.The lot’s front faces a beautifully manicured open space maintained by the FHHOA, adding privacy, tranquility, and unobstructed natural views. Residents of Forest Heights are treated to miles of scenic walking trails, several charming pocket parks, and quick access to Forest Park—one of the largest urban forests in the U.S. Exceptional public and private schools are nearby, making this location ideal for families. With boutique shops, gourmet dining, and freeway access just minutes away, Lot #1 offers both peaceful seclusion and modern convenience.With its combination of location, amenities, tax advantages, and natural beauty, Lot #1 presents a rare opportunity to create a dream home in an outstanding community.
NW Cornell Rd., N on NW Miller Rd., R on NW Hawkins
Dwelling Type: Residential
Subdivision: N/A
Year Built: 2004, County: US
NW Cornell Rd., N on NW Miller Rd., R on NW Hawkins
Listing is courtesy of MORE Realty