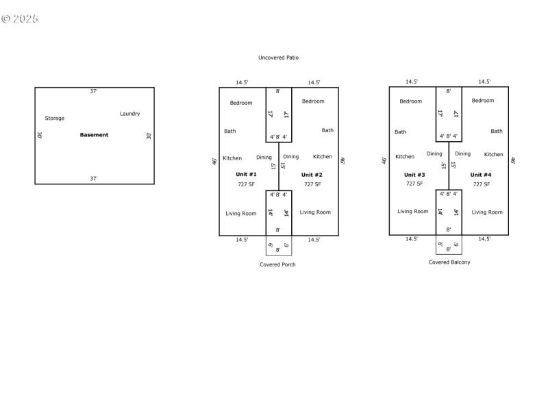
Old-world charm in Historic Irvington. Close proximity to Irvington Park, Whole Foods, coffee shops, restaurants, public transportation, medical... This jewel box built-as fourplex has original leaded glass, woodwork, cabinetry, moldings, and a classic layout including adorable kitchen breakfast nooks and back door service entrances leading to the basement and the rear building exit. This is a rare opportunity in a sought-after neighborhood. We now have a vacant unit - owner occupier opportunity!!
Between NE Tillamook and NE Thompson.
Dwelling Type: MultiFamily
Subdivision: IRVINGTON
Year Built: 1928, County: US
Between NE Tillamook and NE Thompson.
Listing is courtesy of Living Room Realty
Sign in to your account to continue