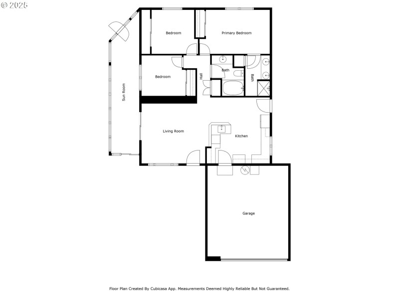
BOM at no fault of the home - First time homebuyers got cold feet.Looking for a move-in ready home with space to spread out, park your toys, and enjoy all that SE Portland has to offer? This one-level ranch tucked at the end of a quiet cul-de-sac is more than just a house — it’s a lifestyle.Just minutes away, you can catch a Portland Pickles game under the lights at Walker Stadium, sip a craft drink at Flipside Bar, or grab dinner from local food carts. Parks, green spaces, and neighborhood energy surround you.Inside, you’ll find fresh interior and exterior paint, new carpet, engineered hardwoods, and a flexible floor plan that includes an enclosed sunroom (not counted in the square footage). The primary suite features a private bath with a walk-in shower, while the open kitchen offers an eat bar and comes with all appliances included.Out back, enjoy a fenced yard that opens to a city-owned green space — perfect for playing fetch, picnics, or relaxing under the trees. Car enthusiasts and small business owners will love the oversized 2-car attached garage plus a detached shop with a brand-new roof and ample space for RVs, boats, or equipment. The main home’s roof is approximately 5 years old, and a 1-year home warranty is included for peace of mind.With its central location, this is the kind of home where you can work hard, play hard, and relax with ease. All that’s left to do is move in — schedule your tour today!
WOODSTOCK/ SOUTH ON 93RD FROM WOODSTOCK
Dwelling Type: Residential
Subdivision: LENTS
Year Built: 1992, County: US
WOODSTOCK/ SOUTH ON 93RD FROM WOODSTOCK
Listing is courtesy of Harcourts Real Estate Network Group