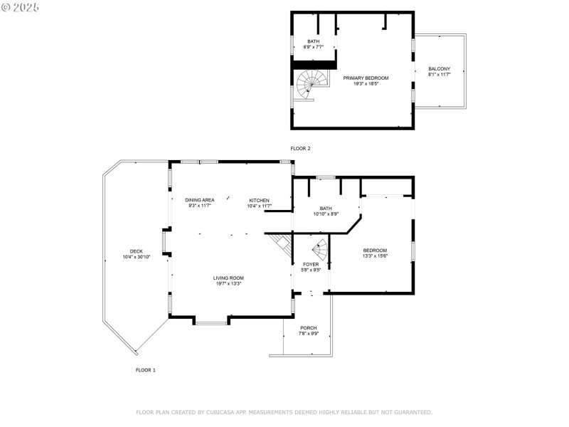
Welcome to #1 Indian Lane, a charming full-time residence or serene vacation retreat nestled in the heart of Sunriver, Oregon. This cozy home features a main-level bedroom and full bath, a spiral staircase leading to a spacious primary suite with exposed beams, and a generous open-concept living area with vaulted ceilings, a gas fireplace, and walls of windows that flood the space with natural light while framing the surrounding beauty. The fully modernized gourmet kitchen boasts soft-close cabinetry and drawers, a farmhouse sink, quartz countertops with full backsplash, and all-new stainless-steel appliances. New recessed lighting, luxury vinyl flooring, and fresh interior paint throughout the main floor add a special touch of modern elegance. Year-round comfort is ensured with oversized mini-split systems and new baseboard and wall heaters. Step outside to a freshly painted exterior and enjoy a massive private front Trex deck—perfect for evening grilling and large gatherings—a covered rear deck for peaceful mornings, and an upper deck off the primary bedroom for coffee with a view. A detached carport with lockable storage for bikes and gear adds convenience, and with easy access to Sunriver’s top amenities—golf, parks, trails, SHARC, the Deschutes River, and more—this home is your gateway to relaxation, adventure, and lasting memories. Sale includes all furnishings, linens, kitchenware, and household items—everything needed for immediate enjoyment or turnkey rental use. Improvements and Upgrade list available.
Circle 11 to Beaver Drive to Indian Lane
Dwelling Type: Residential
Subdivision: SUNRIVER
Year Built: 1979, County: US
Circle 11 to Beaver Drive to Indian Lane
Listing is courtesy of Weeg & Associates Real Estate
Sign in to your account to continue