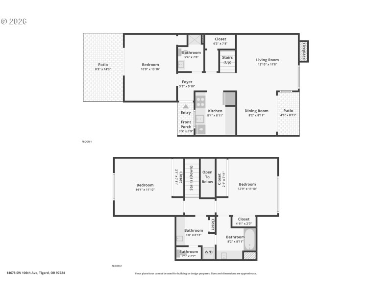
Thoughtfully Updated Condo in Desirable Callway Hill Community! Residents enjoy access to a large clubhouse and pool. East Butte Heritage Park located just half a block away. Conveniently located with easy access to Highway 99 and I-205, plus close proximity to shopping, restaurants, and schools. Fantastic layout in a well-maintained community! This well-cared-for 3 bedroom, 2.5 bath Tigard condo offers comfort, convenience, and numerous modern updates throughout. Enjoy a bright and open floor plan with spacious rooms, abundant closet space, and a main-floor bedroom with private patio. The large fenced rear patio is perfect for entertaining or relaxing outdoors. Recent updates include: storm/screen door, hardwired doorbell, new hallway lighting, new bathtub/shower with surround, floor tile/grout, new light fixtures and exhaust fans. Fresh paint throughout. New kitchen quartz countertops, backsplash, under-mount stainless-steel sink, new electrical conduit and wiring for garages. Feb 2024: Complete attic and crawlspace weatherization, air sealing and insulation. Sept 2023: New high-efficiency dual flush toilet. Apr 2022: All new Simonton 6200 Series Vantage Pointe windows and sliding glass door (extra screen door in garage) Dec 2021: New GE French door refrigerator and Bosch Ascenta dishwasher. Other features include a double-car private garage, full-size stackable washer/dryer, and fenced patios in both front and back. In 2017: New furnace and A/C, new slider was installed, HOA replaced fences and painted the building exterior. Move-in ready and loaded with upgrades—this Callway Hill gem is the perfect place to call home!
Hwy 99-East on Canterbury- Right on 106th
Dwelling Type: Residential
Subdivision: N/A
Year Built: 1972, County: US
Hwy 99-East on Canterbury- Right on 106th
Listing is courtesy of Redfin
Sign in to your account to continue