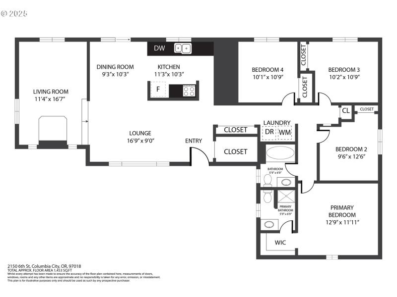
Discover the ease of single-level living in this beautifully updated 4-bedroom, 2-bath ranch-style home. The interior features stylish laminate plank flooring throughout and a modern kitchen equipped with stainless steel appliances. A brand-new roof adds lasting value and peace of mind.Set on a generous 0.32-acre lot, this property offers plenty of outdoor space to relax, garden, entertain, or parking recreational toys. You’ll love the established fruit trees and charming chicken coop, perfect for those who enjoy a touch of country living.This move-in ready home blends comfort, functionality, and character—ready for you to make it your own!
Highway 30 to E Street to 6th, left to address
Dwelling Type: Residential
Subdivision: N/A
Year Built: 1984, County: US
Highway 30 to E Street to 6th, left to address
Listing is courtesy of Redfin