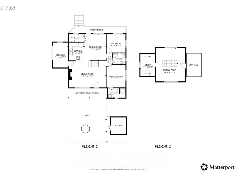
Just in time for ski season! Discover a rare piece of Mt. Hood history in this 1930’s Steiner-built cabin, beautifully updated for modern comfort while embracing its original charm. Situated on a wooded .23-acre lot between the Zig Zag River and Still Creek, this fully-furnished 4 bedroom retreat is ideal as a full-time home, mountain getaway or turnkey vacation rental. Inside, original Steiner wood floors and a striking stone fireplace anchor the cabin's rustic character, with one bedroom featuring authentic log wall finishes in true Steiner fashion. The main level offers three bedrooms and two full baths, while upstairs adds a sleeping loft (4th bedroom) and cozy office. Tasteful updates in the kitchen and baths complement the warm wood paneling for a true mountain lodge feel. Outside relax to the babbling of the river below from the spacious deck with custom-built sauna, fire pit, and cold soak tub. A detached garage/workshop, private nature path, and artisan details complete the property. Whimsical handcrafted gnome doors -created by the owner/founder of Rhododendron's beloved Gnome Way- are tucked throughout the landscape and add an enchanting touch. The exterior has been updated with low-maintenance, forest-durable finishes including metal roof and siding and composite decking, all ideal for mountain living. Nearby, a footbridge links you to Rhododendron shops and eateries, with Mt Hood skiing, hiking, and fishing just minutes away. Historic, artistic, and inviting - this cabin is truly one of a kind!
Hwy 26 to Still Creek Rd, Left (East) on Rd 10, Right (South) on Marion (Rd, maps as Drive)
Dwelling Type: Residential
Subdivision: Rhododendron
Year Built: 1930, County: US
Hwy 26 to Still Creek Rd, Left (East) on Rd 10, Right (South) on Marion (Rd, maps as Drive)
Listing is courtesy of Engel & Volkers West Portland