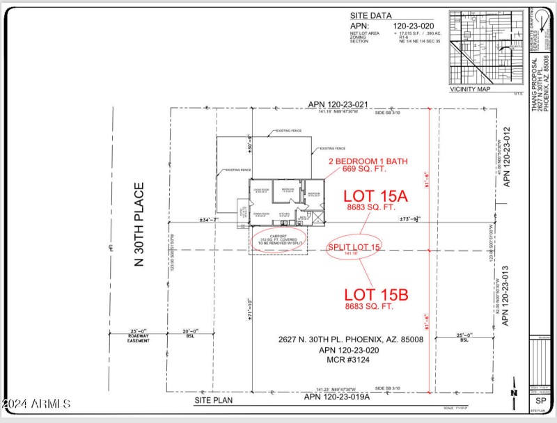
ATTENTION INVESTORS AND BUILDERS. Small rental home on this amazing RARE LARGE parcel size of 17,000sf!! Zoning is R1-6, so each lot (without a variance) needs a minimum of 6,000sf per lot, but many lots in the area are less than 6,000sf. No variance needed if you split the site into two lots and you could build one home on the South lot and keep the small home on the North lot as rental income ($1,500/mo) until you are ready to tear it down and build a new home. Phoenix zoning now allows ADUs (Additional Dwelling Units). Many new homes are being built in the immediate area and this is a RARE parcel size!! See photos with potential development ideas. Check with city to verify all info. Please don't disturb the tenants by walking the lot without permission from agent. THANK YOU!
From Thomas go south on 30th Place approx. 2 blocks and the property is on your left (East).
Please don't disturb the tenants by walking the lot without permission from agent. THANK YOU!
Dwelling Type: Residential
Subdivision: MATTHEWS TRACT
Year Built: 1950, County: N/A
From Thomas go south on 30th Place approx. 2 blocks and the property is on your left (East).
Please don't disturb the tenants by walking the lot without permission from agent. THANK YOU!
Listing is courtesy of Windermere Real Estate & Property Management