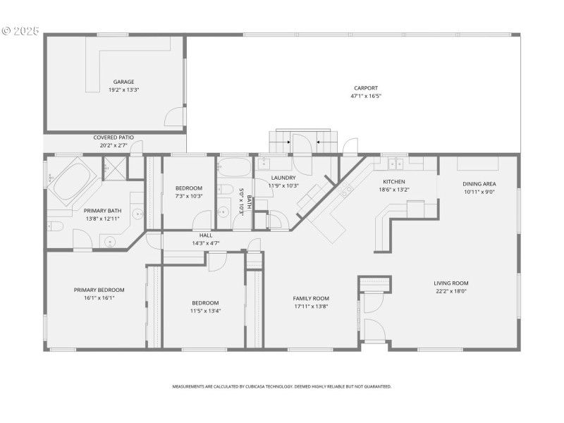
Wonderfully maintained HOMESTEAD 55+ COMMUNITY! Discover comfort, space, and convenience in this beautifully maintained triple-wide manufactured home located in a well-kept park on the peaceful perimeter of town. Residents enjoy a welcoming community meeting room and attractive, well-tended grounds. Inside, the home offers an exceptional layout designed for both gathering and everyday living. The spacious kitchen features an eating bar and flows seamlessly into the vaulted family room, highlighted by a bright skylight. On the opposite side of the kitchen, you’ll find a formal living and dining room, both generously sized, with an additional skylight bringing in natural light. With three bedrooms, the floor plan is both functional and flexible. The primary suite, set privately at the back of the home, includes dual closets and an ensuite bath with double sinks, a soaking tub, and a separate shower. A standout feature is the detached garage/shop equipped with an automatic door and its own sub-panel—ideal for storage, hobbies, or projects. The extra-long carport at the front provides extended covered parking and outdoor versatility. A great opportunity for comfortable living with room to spread out—don’t miss this one!
TV Highway, S on Mountain View Ln to Heather St, to Mountain View Dr, Left Settlers Lp, Left Frontie
Dwelling Type: Residential
Subdivision: THE HOMESTEAD
Year Built: 1990, County: US
TV Highway, S on Mountain View Ln to Heather St, to Mountain View Dr, Left Settlers Lp, Left Frontie
Listing is courtesy of Soldera Properties, Inc
Sign in to your account to continue