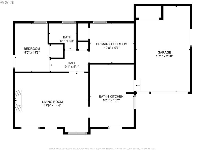
TWO LEGALLY ESTABLISHED HOMES and a massive shop (approx. 44'x44') on one large, flat 1.59 acre lot! Main house is 5 bedrooms, 2.5 bathrooms and approx. 2504 sq feet. Second home has its own address at 12345 SE School Ave and is a 2 bedroom, 1 bathroom home with a garage and the living sq footage is approx. 788 sq feet. Enjoy quiet, country living conveniently located between Damascus and Sandy. Main home boasts vinyl flooring throughout, quartz counter tops, and stainless steel appliances in the kitchen. Expansive primary bedroom and ensuite on the main floor. Recent updates include newer roofs on both houses, new septic tanks and drain field in 2020, main house furnace & heat pump replaced in 2022 with added NASA air filtration system, sump pump installed with back up battery system 2022, foundation work on home and structural work on garage done in 2023, both houses caulked and painted in 2024, rental home and main home repiped water lines and main line to the street/well, vapor barriers, and drain lines redone in 2025. New electrical meter to main house in 2025. Rental on city water and main home is on a well. County says "there may be the possibility of a multi-dwelling land division." Owner is a licensed broker in the state of Oregon.
HWY 212 - North on School Ave - Across from Naas Elementary School
Dwelling Type: MultiFamily
Subdivision: Coolridge Home
Year Built: 1948, County: US
HWY 212 - North on School Ave - Across from Naas Elementary School
Listing is courtesy of All County Real Estate
Sign in to your account to continue