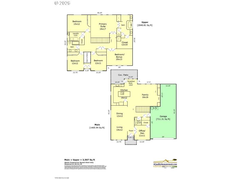
Welcome to refined West Linn living in one of the area's most sought after neighborhoods - offering a community pool and the lifestyle buyers dream of. Thoughtfully updated with timeless style, this beautifully remodeled home offers 3,500+ SF of elegant living space on a level, private lot, combining everyday comfort with show-stopping entertaining spaces.Inside, you will find a warm, inviting layout featuring a formal living room and dining room, ideal for hosting. The heart of the home is the open and airy great room off the kitchen/with informal eating area, which creates a perfect flow for modern living.The fully remodeled kitchen is a standout-featuring fresh white painted cabinetry, stunning quartz countertops, a sleek new induction cooktop, and new appliance's. Whether you're preparing a quiet week-night dinner or entertaining a crowd, this kitchen offers both beauty and functionality. Hardwood floors throughout the main level add warmth and continuity, enhancing the home's timeless appeal.With a grand primary suite/ walk-in closet and luxury bath plus 3 additional spacious bedrooms all on upper level, a dedicated main floor office and additional bonus/media room/or guest area on upper level, there is space for everyone's activities and lifestyle.A large 3 car tandem attached garage is a huge bonus for storage.Step outside to enjoy the privacy and rare usability of an expansive, level lot ideal for outdoor dining, gardening, play, or peaceful relaxation. All this...within a highly coveted WEST LINN neighborhood, close to top rated schools, parks, shopping, dining and commuter routes.MOVE-IN READY. FULLY UPDATED. BEAUTIFULLY DESIGNED. THIS IS WEST LINN LIVING AT IT'S BEST.
Rosemont to Ireland Ln, to Rt on Ridge, Rt on Coho Lane
Dwelling Type: Residential
Subdivision: ROSEMONT POINTE
Year Built: 2007, County: US
Rosemont to Ireland Ln, to Rt on Ridge, Rt on Coho Lane
Listing is courtesy of Eleete Real Estate
Sign in to your account to continue