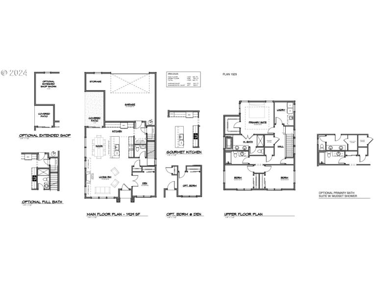
The 1929 floorplan combines thoughtful design with modern comfort. An open-concept main level creates a welcoming space, featuring a generous kitchen island, walk-in pantry, and direct access to a two car garage with soaring ceilings and extra storage. A convenient main-floor bedroom offers flexibility for guests or a home office. Upstairs, the primary suite includes a spa-inspired bath with soaking tub, walk-in shower, and private water closet. Two additional bedrooms complete the upper level. This move-in ready home looks over the green space and has available concessions, and below-market financing options, making it both comfortable and affordable. Photos are from a completed home in the same community that has sold. [Home Energy Score = 10. HES Report at https://rpt.greenbuildingregistry.com/hes/OR10226277]
Model located @ 8193 SE Quincy St
Dwelling Type: Residential
Subdivision: N/A
Year Built: 2025, County: US
Model located @ 8193 SE Quincy St
Listing is courtesy of Holt Homes Realty, LLC
Sign in to your account to continue