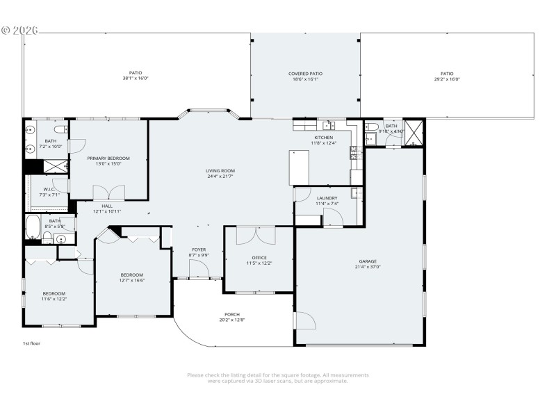
Panoramic River Views and Private 1.56-Acre Coastal Sanctuary. Experience the pinnacle of Pacific Northwest riverfront living in this impeccably maintained 1,967 sq ft sanctuary. Built in 2001 and recently updated, this home offers a front-row seat to the Siuslaw River, the iconic Florence Bridge, and charming Old Town. Beyond the breathtaking views, this residence is a rare find in accessible, "Aging in Place" design, featuring an expansive 4-foot wide hallway and 3-foot wide doorways throughout the primary suite, hall bath, and second bedroom. The open floor plan connects a brand-new kitchen (2025) walking out to a massive new stamped concrete patio. Whether you are entertaining at the breakfast bar or relaxing in the saltwater hot tub, life here centers around the water. The functional layout includes 3 bedrooms plus a dedicated office with elegant French doors, and 3 bathrooms (one full, two 3/4). Practicality meets independence with a zero-step entrance from the garage through a 3-foot wide utility door. The 1.56-acre lot is shielded by mature landscaping, offering a private, park-like setting with a freshly paved asphalt driveway, a newer roof (2022), new exterior paint on all structures, and a large dry storage building with 220 outlets. For your modern connectivity needs, Hyak fiber internet is now available to be serviced at this address. Combining a serene, "future-proofed" layout with unbeatable proximity to the Oregon Dunes, downtown, and local beaches, this is the ultimate coastal lifestyle property.
Hwy 101 S, L on Glenada Rd, just past Prichard Park
Dwelling Type: Residential
Subdivision: N/A
Year Built: 2001, County: US
Hwy 101 S, L on Glenada Rd, just past Prichard Park
Listing is courtesy of River to Coast Real Estate
Sign in to your account to continue