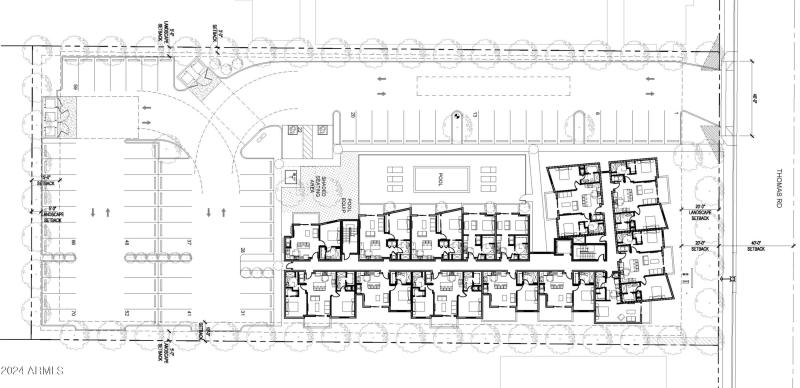
The Papago, designed by Capital Allocation Partners is a permit ready, 56-unit, garden style 4 story project located in the lower Arcadia neighborhood of Phoenix. The Papago features a great mix of studios, 1-br, 2-br units, and a pool.
Dwelling Type: Land
Subdivision: ORANGEDALE PLACE
Year Built: N/A, County: N/A
Listing is courtesy of Fenix CRE