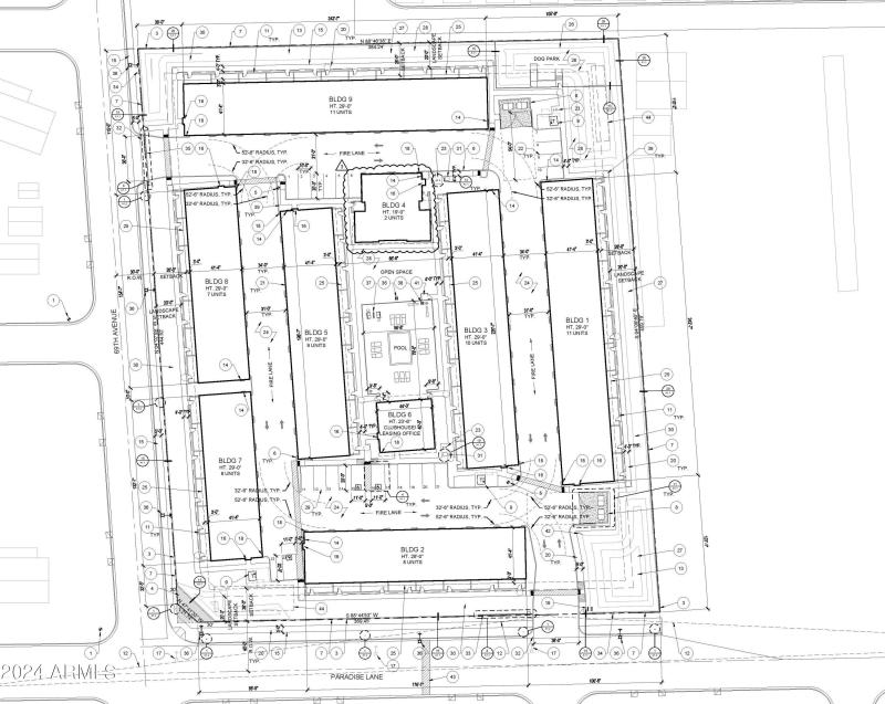
Paradise Enclave is a 64-Unit permit ready project located in the Arrowhead Towne Center in Peoria, AZ. Each townhome is compromised of 2 bedrooms and 2 and a half bathrooms with a 2 car attached garage. The community features include an on-site clubhouse/leasing office, pool, dog park and a fitness center.
Paradise Enclave is located near Arrowhead Towne Center, consistently one of the top-3 performing malls in Arizona outperforming Scottsdale Fashion Square on a sales/SF basis. The demographics for this location are outstanding with a household average income of $87,000 per year.
Dwelling Type: Land
Subdivision: N/A
Year Built: N/A, County: N/A
Listing is courtesy of Fenix CRE