Welcome to an exceptional opportunity in the prestigious, guard-gated Eagles Nest community in Fountain Hills, AZ! This 1.10-acre homesite offers breathtaking panoramic views of the surrounding desert landscape and iconic Four Peaks Mountain. Nestled within a secure, private, and exclusive custom home community, Eagles Nest provides a serene and tranquil setting, while still being conveniently close to local amenities, dining, and outdoor activities.
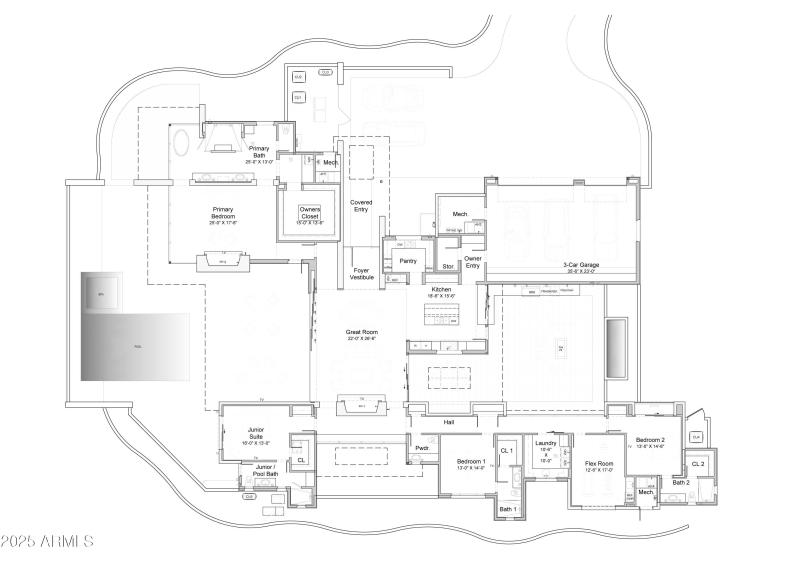
Included with the sale are custom plans for a stunning 4,781 SF contemporary home, designed by renowned PHX Architecture. The plans are thoughtfully crafted to embrace the natural beauty of the land, with open-concept living spaces, floor-to-ceiling windows that frame the spectacular views, and a seamless flow between indoor/outdoor area. Build with Weber Construction, one of the top custom home builders in Arizona, known for their attention to detail and exceptional craftsmanship, or choose your own builder to bring your vision to life. Don't miss the chance to create your dream home on this spacious lot in one of Fountain Hills' most sought-after, guard-gated communities, where luxury, privacy, and nature come together in perfect harmony!
See DOCUMENTS TAB for plans and specifications
North on Palisades Blvd to Sunridge Drive, West to North Mountain Parkway to gate, West to North Ringtail Trail, East to lot on the left.
Dwelling Type: Land
Subdivision: EAGLES NEST PARCEL 11
Year Built: N/A, County: N/A
North on Palisades Blvd to Sunridge Drive, West to North Mountain Parkway to gate, West to North Ringtail Trail, East to lot on the left.
Listing is courtesy of Silverleaf Realty