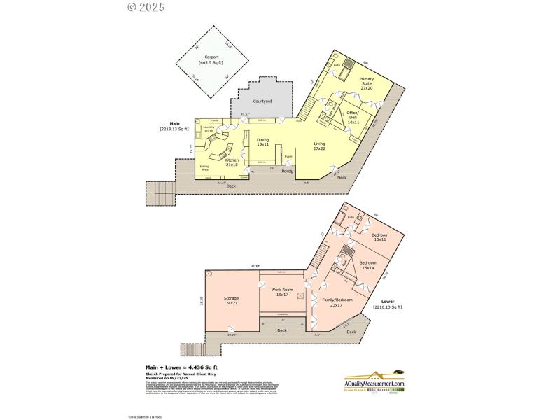
“The Carousel House” was commissioned by the Wyse family in 1969 and has remained in their care ever since. Designed by architect Marjorie Wintermute, one of Portland’s pioneering female architects and an alumna of Pietro Belluschi’s office, together with landscape architect Barbara Fealy, one of the Pacific Northwest’s most celebrated designers, the home captures a moment when modern architecture and landscape design were rooted in both innovation and sensitivity to place. The earliest plans came to life around the Wyse table, sketches spread out, martinis in hand, conversation carrying on late into the evening. Wintermute drew inspiration from Frank Lloyd Wright, shaping a roofline both bold and considerate. Its low planes echo Wright’s Prairie ideals, while clerestory towers draw light deep inside. Designed to preserve neighbors’ views, the three octagonal clerestory ceilings radiate outward like a carousel, giving the house its enduring name. Inside, wood paneling, built-ins, and three fireplaces bring warmth, while the original kitchen remains efficient, playful, and a joy to cook in. The great room gathers light by day and glows by night, opening to two decks with valley views from both levels. Fealy’s terraced plantings and layered greenery frame the house with harmony and quiet drama. With three bedrooms across more than 4,400 square feet, the plan offers flexibility for family, guests, or creative pursuits. First time on the market, held by one family with pride for over five decades. An adjacent view lot is also available, extending both the possibilities and the story of this remarkable property. [Home Energy Score = 1. HES Report at https://rpt.greenbuildingregistry.com/hes/OR10242025]
SW Patton to SW Talbot, to SW Fairmount Blvd, to SW Fairmount Ln. (Property on curve)
Dwelling Type: Residential
Subdivision: COUNCIL CREST/HILLSDALE
Year Built: 1969, County: US
SW Patton to SW Talbot, to SW Fairmount Blvd, to SW Fairmount Ln. (Property on curve)
Listing is courtesy of Vetiver Street Real Estate