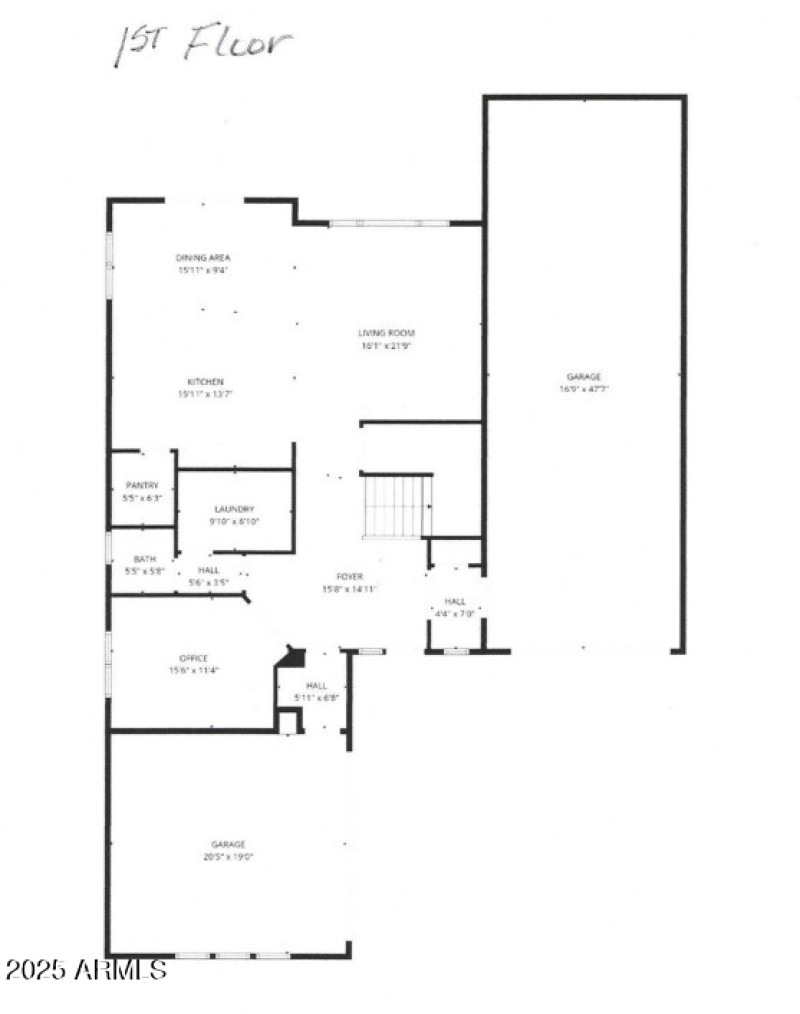
WHY BUILD? Recent price improvement makes this home an even better value!! Looking for the home that checks every box plus some? This energy-efficient home with OWNED solar and very low utility costs, quartz counters, upgraded tall cabinets, walk-in pantry, tile only downstairs. Primary suite features a large tiled walk-in shower and loft upstairs plus 2 additional bedrooms adds extra living space. Upgrades include extended paver driveway, 47-ft RV garage (50-amp, RV dump, epoxy floors, upgraded springs, openers), full home water filtration, Nest thermostat, Air Scrubber, extra insulation, Vivant security system, turf yard, gutters, can lighting, and laundry cabinets. Move-in ready with energy savings and premium finishes throughout! Located near the White Tank Mountain Regional Park Upgrades:
· Driveway Extension (Paved Driveway)
· Gutters (front and back)
· Security Cameras & System (Vivant)
· Epoxy Floors- Both Garages & back Patio
· Entire House Water Filtration System
· Solar- Owned
· Nest Thermostat
· Extra Insulation
· Air Scrubber (Purifier)
· Turf & Backyard Landscaping
· Quartz Counters
· Master Walk in Shower
· Cabinets in Kitchen Tall & Bathroom tall vanities
· Electrical (Data Ports & Mounted TV In all rooms)
· Downstairs all tile
· Back Slider (Large)
· C- Elevation
· Can Lights throughout
· Cabinets in laundry room
· Upgraded Springs in RV garage
· Garage door openers
· RV Dump in the Front Driveway
· 50 AMP RV Hookups
AZ-303 Loop S
Exit 112 for W Peoria Ave.
Right onto W Peoria Ave
Turn right onto N 189th Ave
Follow to W Clinton St
Dwelling Type: Residential
Subdivision: ZANJERO TRAILS PHASE 2 PARCEL 12C
Year Built: 2020, County: N/A
AZ-303 Loop S
Exit 112 for W Peoria Ave.
Right onto W Peoria Ave
Turn right onto N 189th Ave
Follow to W Clinton St
Listing is courtesy of Citiea
Sign in to your account to continue