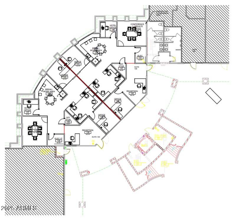
Delivering Q2 2026: Brand new Class A Office space featuring abundant natural light, a large modern conference room, open-concept bullpen, and an inviting break area. Suites offer high-end finishes and can be combined for maximum flexibility.
Dwelling Type: Comm/Industry Lease
Subdivision: SUPERSTITION POINT
Year Built: 2004, County: N/A
Listing is courtesy of AFFIRE, LLC