What's Special: Special Incentives | Corner Lot | Tub in Primary. New Construction - Ready Now! Built by America's Most Trusted Homebuilder. Welcome to the Yellowstone at Asante, where comfort and style come together in a truly inviting home. Step inside from the porch to a spacious foyer that leads to two bedrooms, a full bath, a study, and access to a one-car garage on one side. On the other side, an additional bedroom, bathroom, and entry to a separate two-car garage offer plenty of space for guests or extra storage. At the heart of the home, the open-concept great room flows into a bright kitchen with an island and a cozy dining area that opens to a covered outdoor living space. The private primary suite is tucked away for relaxation, featuring a generous walk-in closet.MLS#6850088 Virtually staged photos are for representative purposes only. Structural Options Added Include: Study and Showers at Bathroom 2 & 3
From 163rd Ave go South on 166th Ave, go north on 166th drive.
Dwelling Type: Residential
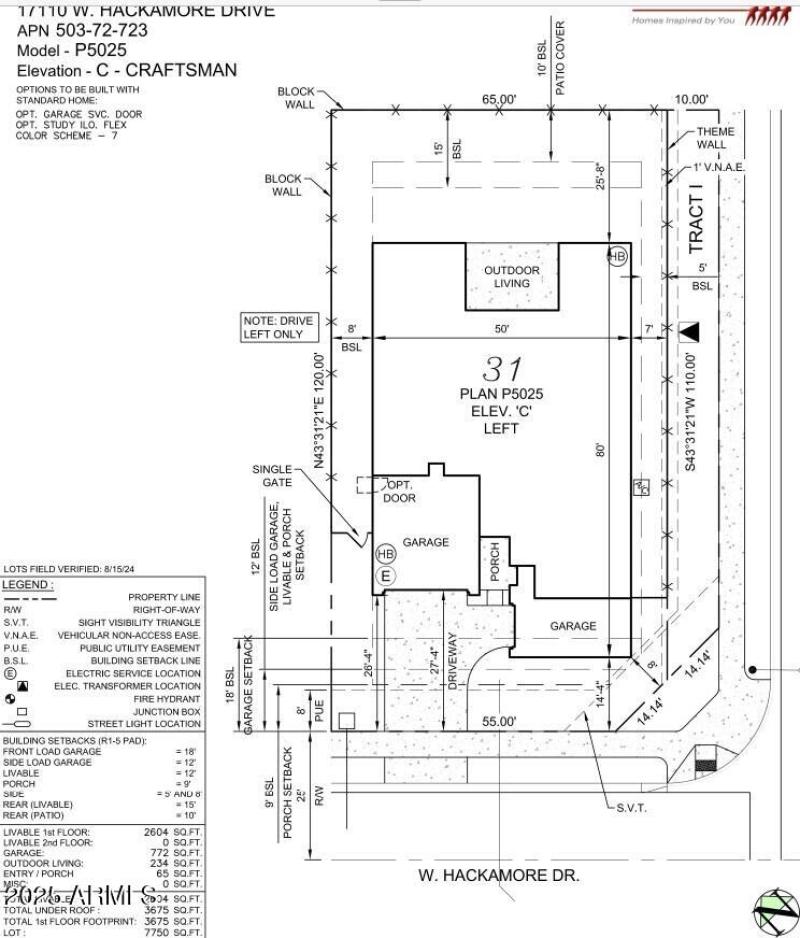
Subdivision: Asante Passage
Year Built: 2025, County: N/A
From 163rd Ave go South on 166th Ave, go north on 166th drive.
Listing is courtesy of Taylor Morrison (MLS Only)