This is your opportunity to build an exquisite custom home. Boasting a captivating great room floor plan and situated on an expansive, over more than an acre lot, providing the perfect canvas for your vision of luxury living. With the unique opportunity for the buyer to choose all finishes, this remarkable residence promises an unparalleled level of customization and sophistication. Step into the heart of this home, and be greeted by a kitchen that is as functional as it is beautiful. The buyer has the freedom to select their desired stone for the island, countertops, and backsplash, creating a kitchen that reflects their personal style and taste. Every cabinet in this culinary haven is equipped with slow-close drawers and doors, embodying the seamless blend of convenience and refine
craftsmanship. A pot filler adds an elegant touch to the culinary experience, while the presence of a butler pantry with a separate food prep area allows for seamless organization and efficiency. With 42" upper cabinets adorned with crown molding and 30" lower cabinets, ample storage space is provided, ensuring a clutter-free environment. The 3cm countertop edge profile adds a luxurious finishing touch to this stunning kitchen.
The elegance continues throughout the home with a choice of 12x24 or 24x36 tiles in all wet areas, creating a cohesive and visually pleasing aesthetic. The 8" baseboards and solid core doors add an extra layer of sophistication and durability.
The bedrooms in this custom home are adorned with coffered ceilings, adding a touch of architectural elegance, while tray ceilings enhance the bedrooms, office and Bonus Room, providing an elevated sense of style and grandeur.
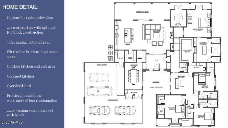
Step outside and discover an oasis of relaxation and entertainment. The outdoor space boasts a fully equipped kitchen with a grill, icemaker, and dual burner gas cooktop, offering the perfect setting for al fresco dining and culinary adventures. An outdoor wood-burning fireplace sets the stage for cozy gatherings on cool evenings. The centerpiece of the outdoor area is the stunning 25x50 swim-up beach pool with a separate spill-over hot tub, providing a luxurious retreat for relaxation and recreation.
Every bathroom in this custom home features custom stone and tile showers, exuding opulence and sophistication. The master shower is equipped with dual body systems, ensuring a spa-like experience in the comfort of your own home. Satin nickel Moen fixtures add a sleek and modern touch throughout.
For effortless entertaining, a wet bar area is thoughtfully incorporated, complete with a sink, refrigerator, and icemaker, ensuring that refreshments are always close at hand.
In addition to the luxurious main living areas, this home also offers a separate Gen Suite, equipped with GE Profile appliances including a refrigerator, oven, microwave, washer, and dryer. This self-contained suite provides the perfect space for guests or multigenerational living.
Indulge in the opportunity to create your dream home with this exceptional custom residence. From the meticulously designed kitchen to the luxurious outdoor oasis, every detail has been carefully considered to provide the ultimate in comfort, style, and functionality. Embrace the chance to curate a space that reflects your unique vision, and experience the epitome of elegance and refinement in this remarkable custom home.
Dwelling Type: Residential
Subdivision: None
Year Built: 2026, County: N/A
Listing is courtesy of Vylla Home
Sign in to your account to continue