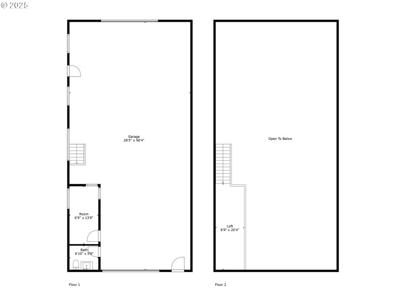
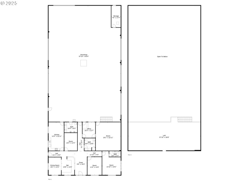
Industrial complex located just off I5 interchange. Large industrial building with robust remodeled office area. Machine shop has tall ceilings, tall, rollup doors, mezzanine storage and dedicated bathroom. Office complex has large reception area plus private offices and large break room. Paved customer/employee parking and large gravel yard for equipment with wash station. Additional auxiliary pull through industrial building with tall ceilings, tall doors, modest office, mezzanine, and bathroom. Owners would consider cash, lease, and potential lease/option.
From Winchester, North on Old Highway 99 North, Right on Weyerhaeuser
Dwelling Type: CommercialSale
Subdivision: N/A
Year Built: 1969, County: US
From Winchester, North on Old Highway 99 North, Right on Weyerhaeuser
Listing is courtesy of Roseburg Homes Realty