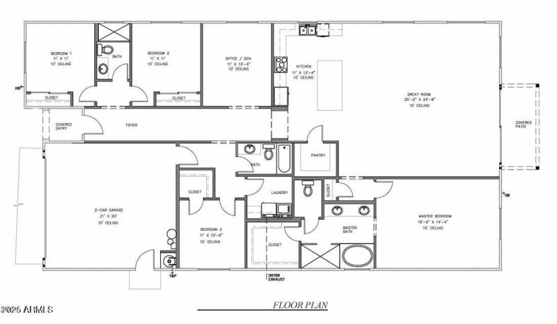
Rare new construction in the heart of Downtown Tempe! This 5-bed, 3-bath single-family home located under a mile from ASU, Mill Ave, and Tempe Town Lake. Built with high-quality 2x6 construction, energy-efficient foam insulation, and dual HVAC units for year-round comfort. Home includes one year builder warranty. The split floorplan offers ideal privacy for guests or multigenerational living. No HOA fees mean more freedom and lower monthly costs. Just 7 minutes to Sky Harbor and 15 to downtown Phoenix. A perfect fit for a primary home, student rental, or modern urban retreat. Construction to be completed by Oct. 15. Don't miss this rare opportunity in one of Tempe's most desirable areas! Welcome to your new home!
From 5th St, head West on Robert and home is on the South Side of the Street.
Dwelling Type: Residential
Subdivision: WILLACKER HOMES
Year Built: 2025, County: N/A
From 5th St, head West on Robert and home is on the South Side of the Street.
Listing is courtesy of Realty ONE Group
Sign in to your account to continue