These 2 Dove Valley Ranch parcels in northeast Phoenix comprise 11.1 acres. The 6.4 acre parcel (M) with a 500' marketing window on Cave Creek Rd. and the 4.7 acres (Q) across Black Mountain Parkway from the Dove Valley Ranch golf course are a nice compliment to each other. Model on Cave Creek Road on M and build on parcel Q by the golf course and work your way back east. No R1-18 vacant parcels left (Masterplan or otherwise) within the 30 square miles bounded by Scottsdale Rd., Carefree highway, 40th St. and Dynamite. The 5 closest active subdivisions to the subject comprise a total of 26 unsold lots made up of the following builders: Toll,Shea,KLMR-2 and Cachet. Price range is $980k-$3.8m for a fully furnished Toll Home. Utilities: to the sites
Zoning: R1-18
Traffic Count: Parcel M (2022) : 21,832
Demographics
Average Family Income: $223,918
Total Housing units : 89,159 (79% single family)
Homes built in 1990 or newer: 72%
Total labor population: 157,092
Source: Sites USA 10mi radius report year 2023
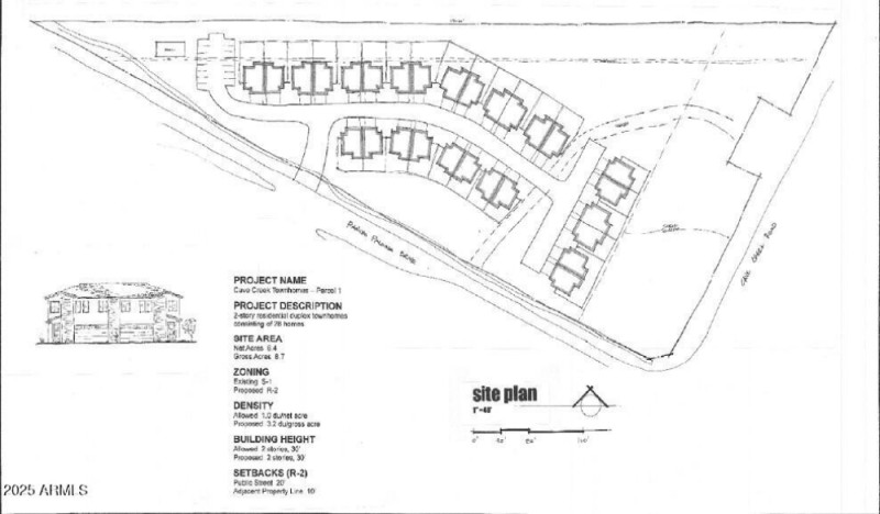
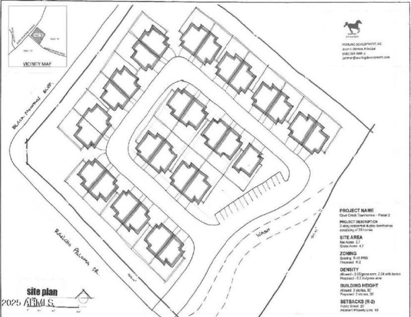
Comments:
* Last 2 sites within the DVR masterplan
* Parcel M is the only available parcel at a
signalized intersection on Cave Creek Road along
the 8 miles from the 101 freeway to Carefree
Highway
* Parcel Q With its 350' by 445' dimensions and
location across Black Mountain Road from the
8th hole of the course site is ideal for a variety of
residential uses. See following pages for
conceptual site plans.
Available due diligence information upon
Dwelling Type: Land
Subdivision: DOVE VALLEY RANCH
Year Built: N/A, County: N/A
Listing is courtesy of Insight Land & Investments