Vacant land BUILD TO SUIT.
Concept plans ~3000sqft 4 bd/2.5ba home w/ 6 car garage in Arizona's Garden of the Gods. FEATURES INCLUDE:
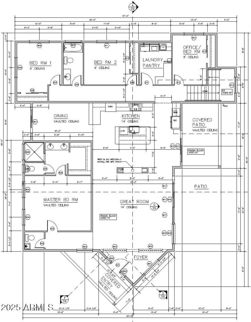
~2500 sq ft single level living - 4 bd & 2.5 bath with an optimum split floor plan layout and great room with distinct space separation and grand 12-14 ft ceilings
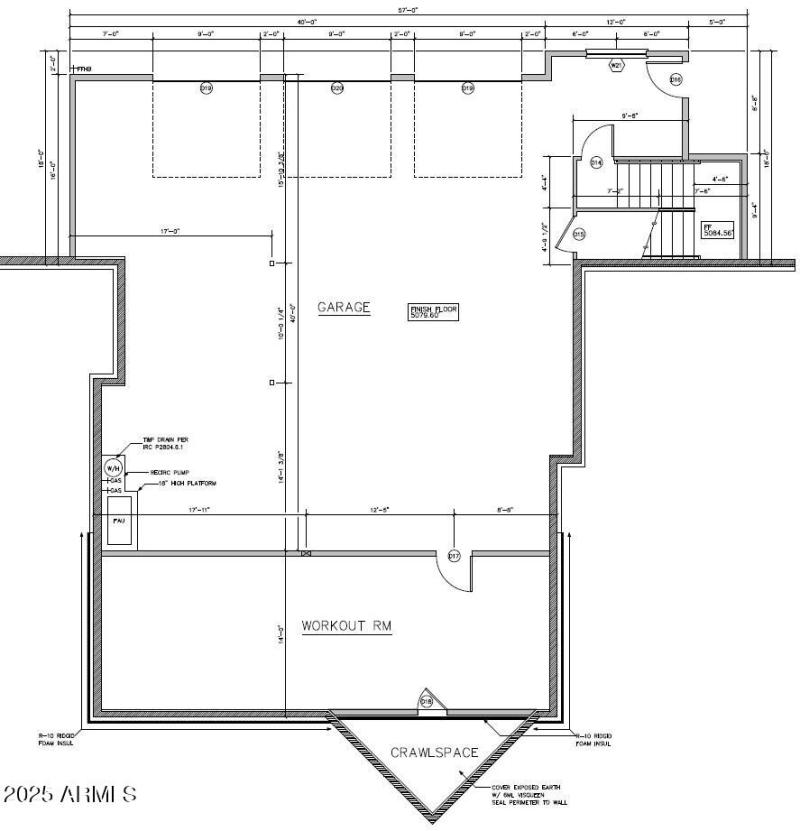
~500 sq ft garage floor flex room for private gym/spa, workshop, speakeasy/wine room, craft room, etc. with independent HVAC unit
-6 car garage (3 tandem stalls ~1720sqft)
-Front guest entrance through a private slot canyon
-Option to modify design, to add 3rd full bath; -3 car garage +~500sq ft or +3 car garage to 9 and -~500 sq ft
-Huge storefront style windows bring the outside in & provide winter ''passive solar''
-Home completely hidden from the street Exclusive community in a hidden and historic Prescott location known as Arizona's Garden of the Gods features community pool, private trails leading to 1300-acres of open space, gated with access to full utilities. Don't settle for a SPEC HOME when you can have TOTALLY CUSTOM BUILT TO SUIT high-quality luxury for the same price. The experienced team of builders will work to turn your dream home into a reality or just buy the land and build when you are ready. No minimum build time.
-Elevated foundation provides distant rock views of the Dells
-Orientation provides complete privacy in Master bedroom, great room, kitchen and backyard
-TOO MANY OTHER FEATURES TO LIST, but some including: pre-wired for Level 2 EV charger, pre-wired and plumbed for natural gas whole house backup generator, pre-wired for Ethernet, large eaves protect house and reduce maintenance, standing seam metal roof, massive kitchen island, separate formal dining area off kitchen with private "coffee" patio, large double sided natural gas fireplace separates the great room from kitchen, large covered patio with natural gas for BBQ / firepit, hot water circulator, and more.
Although high end finishes have been designer selected, these can be easily modified at this phase. Structural / architectural changes can also be arranged with the builder as desired, such as a larger flex room or larger garage, additional full bathroom, etc.
Foundation preparation is nearly complete including grading permits issued, surveys, soil testing, utilities run from street, chipping/blasting rock removal excavation, and more.
HWY AZ-89, turn on Twisted Trail. Proceed to gate. Enter community & proceed to Realtor sign.
Park on street and walk up driveway.
Lot is completely hidden from the street behind large boulders.
Dwelling Type: Land
Subdivision: GRANITE PARK PHASE 4
Year Built: N/A, County: N/A
HWY AZ-89, turn on Twisted Trail. Proceed to gate. Enter community & proceed to Realtor sign.
Park on street and walk up driveway.
Lot is completely hidden from the street behind large boulders.
Listing is courtesy of HomeSmart