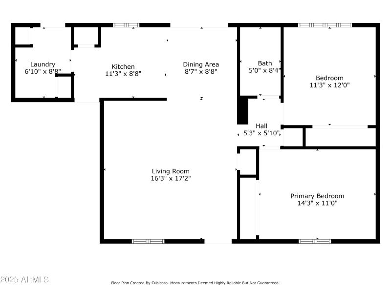
Cute, Cozy and Very well kept 2bdroom twin home . Many upgrades thru the years, including tile floors, dual pane windows, plantation shutters, updated bathroom wheelchair accessible, kitchen appliances, brand new stove.
Inside laundry room, covered patio with epoxy floor. Beautiful green common area. Close to sun city community activities with so many amenities, like the 7 recreation centers, golf, pickleball courts, walking pools and concerts, there's no shortage of activities to enjoy.
This is a must see!
South to Salem, Right to Cinnebar, right to home.
Dwelling Type: Residential
Subdivision: Sun City
Year Built: 1968, County: N/A
South to Salem, Right to Cinnebar, right to home.
Listing is courtesy of Gorr Real Estate, Inc.