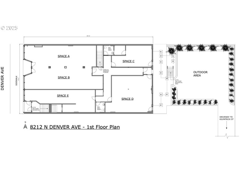
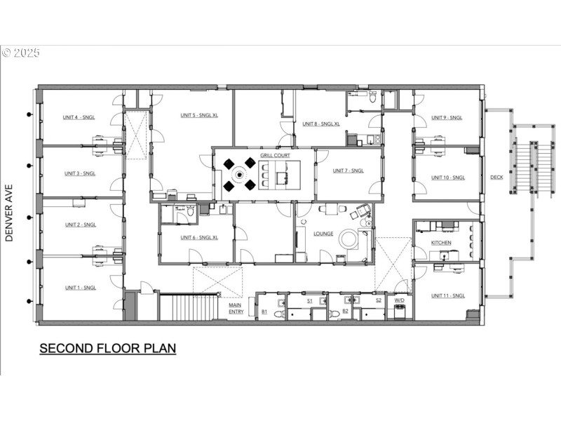
Welcome to 8212 N Denver Ave, an outstanding investment opportunity in the vibrant Kenton neighborhood of North Portland. Extensively remodeled since its 2018 acquisition, this well-located property offers a dynamic mix of retail and residential units with strong income potential and modern appeal.The main level features three fully leased commercial spaces, currently home to a popular restaurant, an established salon, and a local record shop. These mostly street-facing storefronts benefit from high visibility and steady foot traffic along N Denver Ave, making them ideal for retail and service-based businesses. Each commercial unit is individually metered.Upstairs, the second floor includes 11 residential units catering to modern urban lifestyles. The mix features (2) one-bedroom apartments with full bathrooms and kitchenettes, and an additional (9) thoughtfully designed micro units. These include one double-sized micro unit with an in-unit kitchenette, seven standard micro units with kitchenettes (cabinetry, shelving, sinks, mini fridges), and one streamlined unit without a kitchenette—offering an efficient, affordable housing solution.Residents enjoy shared amenities that enhance livability, including a large common kitchen and dining space, an enclosed grilling area with built-in BBQ, seating, and gas fire pit, plus a rear deck with additional seating and elevated views. Additional conveniences include a washer/dryer closet, two powder rooms, and two dedicated shower rooms, all maintained for resident comfort.A spacious, mostly open basement currently includes three secured storage units, with room for additional build-out or flexible repurposing.Located in a walkable, bike-friendly area near transit, parks, and local businesses, 8212 N Denver Ave is ideal for investors or owner-users seeking strong income, flexibility, and long-term value in one of Portland’s most desirable up-and-coming neighborhoods.
N Denver & N Kilpatrick
Dwelling Type: CommercialSale
Subdivision: N/A
Year Built: 1911, County: US
N Denver & N Kilpatrick
Listing is courtesy of eXp Realty, LLC
Sign in to your account to continue