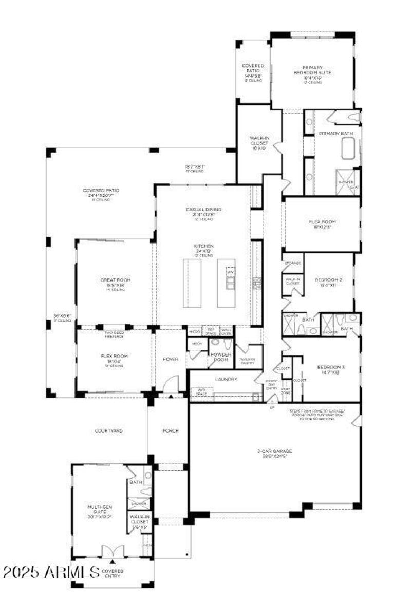
The Windgate home design offers effortless entertaining for family and friends. Welcoming casita and courtyard at the front entryway leading in to the main living areas of the great room with double sided 60' fireplace and grand multi-slide stacking door, casual dining, and kitchen have soaring ceilings and open to a generously sized covered patio for indoor/outdoor Arizona living at its finest. Up to 14' ceilings. The well-appointed kitchen has oversized double islands with plenty of counter and cabinet space and a generous walk-in pantry. The primary bedroom suite is inclusive of an expansive primary bath with dual vanities, large soaking tub, and luxe shower with seat. Private casita can be used for a separate guest suite, gym, or secluded home or office. Home is offered to-be-built.
From Highway 101, take Pima/Princess exit and turn right to proceed N on Pima. Take right on E Happy Valley Rd and continue straight. Turn right on Ranch Gate Rd and then turn right on 125th Pl.
Dwelling Type: Residential
Subdivision: MCDOWELL MOUNTAIN MANOR
Year Built: 2026, County: N/A
From Highway 101, take Pima/Princess exit and turn right to proceed N on Pima. Take right on E Happy Valley Rd and continue straight. Turn right on Ranch Gate Rd and then turn right on 125th Pl.
Listing is courtesy of Toll Brothers Real Estate
Sign in to your account to continue