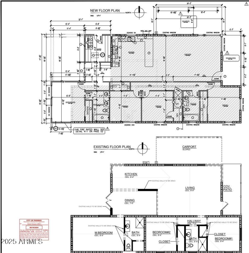
Shovel-Ready Opportunity with Approved Plans & Permits!This fire damaged property comes with City Approved plans outlining new roof trusses, an addition, and a full transformation into a 4-bed, 2-bath, 1, 960 sq. ft. charmer. No need to wait on city for plans/ city / historic review - with approved permits in place, it's ready for a homeowner or investor to bring it to life DAY ONE. Located next to the sought-after Encanto-Palmcroft Historic District, you're just minutes from downtown Phoenix, Encanto Park, golf course, and more. Don't miss this rare chance to build in one of Phoenix's best locations!
Dwelling Type: Residential
Subdivision: FAIRVIEW PLACE BLKS 1-4 FOR LOT 2 SEE 118-49
Year Built: 1936, County: N/A
Listing is courtesy of Gentry Real Estate