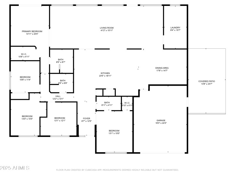
WATERFRONT lifestyle in Dobson Ranch! Ultimate blend of serenity and convenience, this single-story ranch offers plenty of living and entertainment space on a HUGE CUL-DE-SAC lot, with 5 bedrooms, 3 baths, gated carport, 4+car driveway. Gazebo overlooking the LAKE is perfect for relaxation and dining. Enjoy Dobson Ranch amenities: recreation center activities, events, clubs, classes, parks, dog park, 3 pools, boating, fishing, pickleball, tennis, golfing, trails, etc. High-end upgrades: large format tile, custom euro cabinetry, Grohe and Kohler faucets, lighting, dimmers, more. Fiber optic ready. Furniture, accessories, laundry cabinets, closet system & fridge included at Buyers option. Cowboy pool 'as is.' OWNER FINANCING options- please ask if interested in this option! Must See home.
via googlemap
Dwelling Type: Residential
Subdivision: LOS ALTOS AMD
Year Built: 1974, County: N/A
via googlemap
Listing is courtesy of Brokers Only, LLC
Sign in to your account to continue