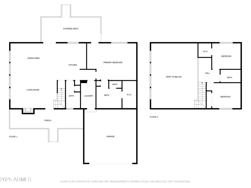
Chalet-Style Cabin in the Heart of Pinetop! Discover the perfect blend of rustic charm and modern comfort in this beautifully remodeled chalet-style cabin, nestled in the heart of Pinetop, AZ. This 3-bedroom, 2.5-bath home offers 1,767 sq ft of living space on a spacious .31-acre lot, with no HOA restrictions. Embrace the beauty of the soaring ponderosas and quiet community. Step inside to an open floor plan with vaulted tongue-and-groove ceilings, stunning natural light from oversized windows, and a cozy yet expansive ambiance. The main level features a primary suite with its own private exit to the backyard, perfect for quiet mornings or late-night stargazing. Upstairs, a charming loft overlooks the main living area, as well as two additional bedrooms and a full bath. The space upstairs provides ample room for guests or family.
Enjoy Arizona's seasons from the comfort of two large, covered decks or gather around the outdoor firepit under the stars. There's also a dog run for your four-legged friends and a 2-car garage for storage or vehicles.
Sold furnished, this home is perfect as a full-time residence, vacation getaway, or income-producing rental.
Key Features:
3 Bedrooms | 2.5 Bathrooms | 1,767 Sq Ft
.31 Acre Lot | No HOA
Fully Remodeled in 2022
T&G Vaulted Ceilings & Loft
Huge Windows for Natural Light
Primary Bedroom on Main Floor w/ Backyard Access
2 Covered Decks | Outdoor Firepit | Dog Run
2-Car Garage | Fully Furnished
This rare Pinetop gem offers the lifestyle you've been dreaming - mountain air, tall pines, and modern comfort all in one.
Imagine living in the White Mountains of Arizona where you have 4 beautiful seasons and where you can breathe in the fresh mountain air and enjoy the 40 lakes and over 600 miles of rivers and streams. In addition to the amazing fishing, this area has one of the most extensive trail systems in the southwest for hiking, biking, horseback riding, quadding and more. Sunrise Ski Resort is also just 40 minutes away with 3 beautiful mountains to ski, snow board or sled. If shopping is your interest, you will love the antique stores and the multitude of arts and craft shows that happen in the summer. The music festivals have something to fit everyone's enjoyment. Do you love to golf? There are 7 amazing golf courses, 3 that are public. The White Mountains, where this home/cabin is the best kept secret of Arizona! Come and explore and enhance your living! Pinetop-Lakeside was also voted 'Best Cabin Region in the U.S"... Embrace the MAGIC!
HWY 260, heading south turn R onto E Woodland Lake Rd, (at Chevron) turn L onto Whispering Pines Ln. Continue onto Pine Wood Ln, turn R onto Sequoia Ln. To the home/sign on the right.
Dwelling Type: Residential
Subdivision: THE WOODS AT PINETOP UNIT 1
Year Built: 1998, County: N/A
HWY 260, heading south turn R onto E Woodland Lake Rd, (at Chevron) turn L onto Whispering Pines Ln. Continue onto Pine Wood Ln, turn R onto Sequoia Ln. To the home/sign on the right.
Listing is courtesy of West USA Realty