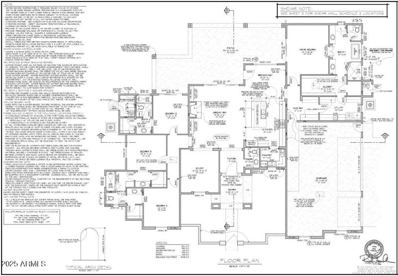
Fully approved & ready to build! This stunning single-story home showcases timeless curb appeal with elegant brick accents, shake siding, and a welcoming covered front porch. Step inside to discover an open-concept layout where the kitchen, great room, and dining area flow seamlessly together—perfect for modern living and entertaining. The gourmet kitchen boasts a generous island, walk-in pantry, and ample counter space. Retreat to your private master suite featuring a spa-like bathroom with dual vanities, soaking tub, spacious shower, and an oversized walk-in closet. Thoughtful design includes a split bedroom plan for privacy, mudroom entry from garage, and dedicated laundry room. With 4 bedrooms, 3.5 baths and approximately 3,011SF, this home offers the perfect blend of style, function!
Turn north onto N 16th St from E Carefree HWY. Turn right (east) onto E Cloud Rd. Turn left (north) onto N 20th St. Home is on the right (east) after passing E Maddock Rd.
Dwelling Type: Residential
Subdivision: 20th St Ranch
Year Built: 2026, County: N/A
Turn north onto N 16th St from E Carefree HWY. Turn right (east) onto E Cloud Rd. Turn left (north) onto N 20th St. Home is on the right (east) after passing E Maddock Rd.
Listing is courtesy of RC Realty
Sign in to your account to continue