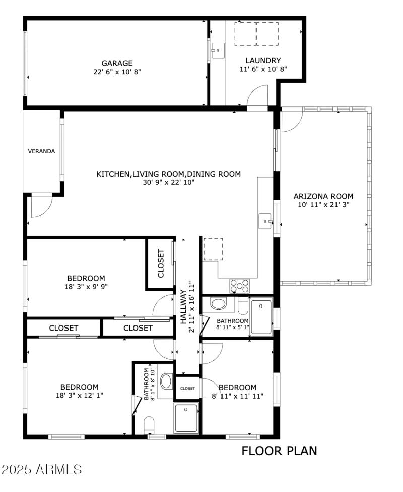
Located in the prestigious Biltmore area, this stunning home (and two adjacent properties) offers a unique chance to own a piece of paradise. With its prime location, you'll be just steps away from work, top-rated restaurants, entertainment venues, and luxury shopping. BUY ONE OR ALL THREE! You have the option to purchase one, two, or all three properties, making this a fantastic opportunity for investors or those looking to create a dream home. Imagine the possibilities: a single-family residence, a multi-unit property, or even a potential redevelopment project. The choice is yours! Fully remodeled in one of Phoenix's most sought-after areas, just steps away from all the action at Biltmore Fashion Park, AMC Theatres, and the new Diamond Premiere LifeTime gym. Sleek interior delights with polished concrete floors, modern fans, and a bright great room that's ready for gatherings. Delightful kitchen shines with stainless steel appliances, a stylish tile backsplash, granite counters, white cabinetry, and a cozy breakfast bar perfect for morning coffee or midnight snacks! The chic main bedroom features mirrored closet doors and a trendy barn door leading to the private bath. A handy laundry room with a utility sink adds extra convenience. The chic main bedroom features mirrored closet doors and a trendy barn door leading to the private bath. A handy laundry room with a utility sink adds extra convenience. Enjoy the versatility of a bonus fully enclosed sunroom perfect for lively gatherings or peaceful moments to unwind. Step outside to a low-maintenance backyard oasis featuring a spacious swim spa, ideal for energizing workouts or melting your cares away under the stars. This is a wonderful home in a sought-after location you'll love!
South on 24th Street, the property is on the East side just South of Camelback Rd.
Dwelling Type: Residential
Subdivision: CAVALIER CAMPUS 2
Year Built: 1954, County: N/A
South on 24th Street, the property is on the East side just South of Camelback Rd.
Listing is courtesy of Simply Real Estate
Sign in to your account to continue