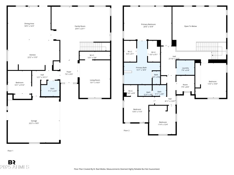
Highly sought-after floor plan featuring a full bedroom and bathroom downstairs—perfect for guests or multigenerational living! This spacious 5-bedroom, 3-bath home also includes a large bonus room ideal for an office, game room, or easily converted 6th bedroom with its own closet. Freshly updated with new carpet and interior paint, the home features a generous kitchen with granite counters, island, and gas range. The upstairs primary suite offers two walk-in closets, double sinks, and separate tub and shower. Located in the desirable Country Shadows community near top Chandler schools, parks, and shopping!
From Higley Rd and Chandler Heights Rd, head east on Chandler Heights, turn right on Cole Dr, then left on Andre Ave, the home is on the right.
Dwelling Type: Residential
Subdivision: COUNTRY SHADOWS
Year Built: 2004, County: N/A
From Higley Rd and Chandler Heights Rd, head east on Chandler Heights, turn right on Cole Dr, then left on Andre Ave, the home is on the right.
Listing is courtesy of Rover Realty