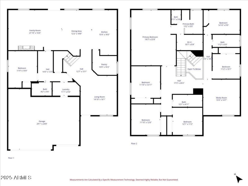
Welcome to this beautifully upgraded 7-bedroom, 4-bath home with a spacious loft and over 3,900 sq. ft. on a premium corner lot in the desirable Senita community! Thoughtful custom touches and a great open floor plan seamlessly connect the main living, dining, and kitchen areas — perfect for modern living and entertaining.
Enjoy a stunning built-in fireplace and a fully redesigned kitchen featuring granite counters, stainless steel appliances, cabinet lighting above and below, and a custom walk-in pantry with ample shelving and a coffee bar.
Upstairs, beautiful black cabinetry with a rich wood topper adds both storage and style. The home offers multiple living areas, a downstairs bedroom with a full bath, and an oversized primary suite with a large walk-in closet. The low-maintenance front yard and private backyard retreat include a beautifully remodeled pool, turf, a custom floating deck, and a relaxing spa ideal for entertaining or unwinding.
With a 3-car garage, modern upgrades, and one of the most unique open layouts in the neighborhood, this home offers both style and comfort. Truly one of a kind in Senita!
Take John Wayne Pkwy south to Mercado. Head southeast on Mercado. Left/north onto Maricopa Groves Pkwy. First left, and then right onto Shelby. Follow around to Blazen and your new home.
Dwelling Type: Residential
Subdivision: SENITA UNIT 1
Year Built: 2005, County: N/A
Take John Wayne Pkwy south to Mercado. Head southeast on Mercado. Left/north onto Maricopa Groves Pkwy. First left, and then right onto Shelby. Follow around to Blazen and your new home.
Listing is courtesy of PROS Realty LLC
Sign in to your account to continue