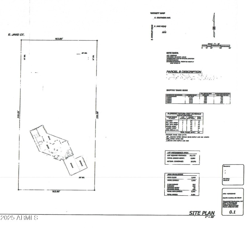
1.25ac custom homesite-COUNTY LOT-NO HOA-HORSE PROPERTY-BUILD TO SUIT-Shared well or option for private well-Bring your own plans or choose from builders selection and build your dream home-pricing based on a 2800sqft home at $285/sqft build cost-must use provided builder. 299k lot price-new custom home area with stunning panoramic mountain and city light views. Proven energy efficient homes. Fully buildable lot. No washes. Private access road. Finance companies available.
US 60 to Mountain View Rd, North to Southern Ave, East to dead end, South on Barkley Rd, past Jake Ct to private access road. Signs on property. DO NOT ACCESS FROM JAKE CT PLZ.
Dwelling Type: Residential
Subdivision: 1.25ac CUSTOM HOMESITE
Year Built: 2025, County: N/A
US 60 to Mountain View Rd, North to Southern Ave, East to dead end, South on Barkley Rd, past Jake Ct to private access road. Signs on property. DO NOT ACCESS FROM JAKE CT PLZ.
Listing is courtesy of My Home Group Real Estate
Sign in to your account to continue